To Let
Junction Road
£40,000 pax


  • arrow icon * DUE TO RELOCATION * Excellent A1/A2 Opportunity 961 SQFT Lease For Sale

A fantastic opportunity to occupy this corner-sited unit, with excellent visibility – available by way of a new lease. The property is within close proximity of both Tufnell Park Road (Northern Line) & Archway Underground station (Northern Line)

LOCATION
Situated on Junction Road, set in a desirable location, in a densely populated commercial and residential catchment. Various transport serve the immediate area, with Tufnell Park Underground Station within easy reach, complemented by numerous local bus routes.

DESCRIPTION
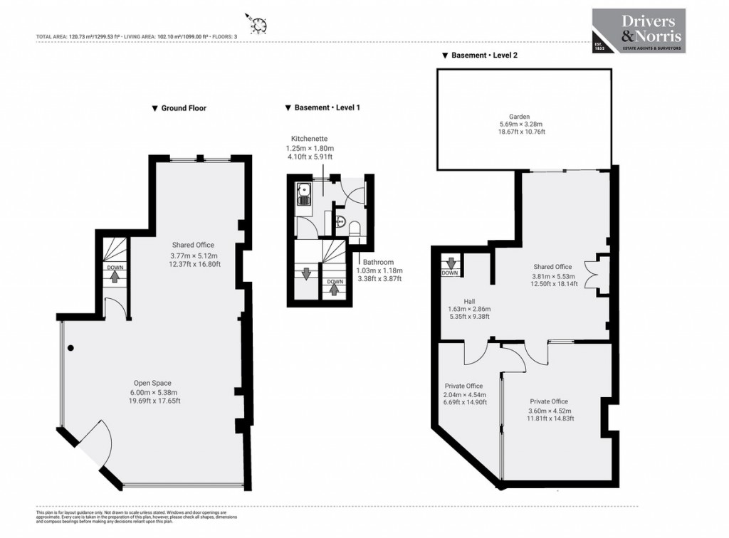
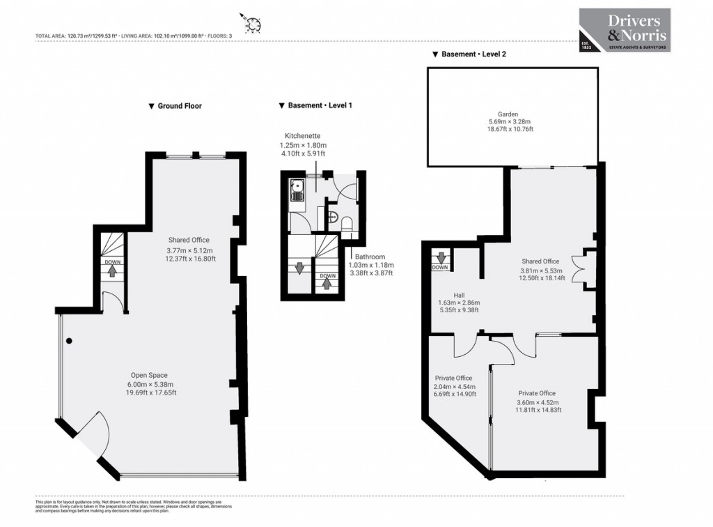
The premises span the ground and basement levels and benefit from Class E use.

The ground floor features a retail area with a vastly open-plan section to the front and a private office area to the rear.

The basement is split into two sections. The first level contains a kitchenette and WC, with stairs leading down to three private offices and providing access to a rear garden.

ACCOMMODATION
Gross internal Area: 1099 Sq Ft (102 Sq M)

AMENITIES
Ground & Basement Levels
Numerous transport links
New Lease
Class E Use

TERMS
Available on a new full repairing and insuring lease outside the landlord & tenant act, subject to periodic rent reviews.

OUTGOINGS
Parties are advised to make their own enquires with the local authority.

VIEWING
Strictly via the Landlord's sole agent, Drivers & Norris.

office

For further details on this property please call us on:
020 7607 5001

Arrange Viewing
Floorplans For Junction Road Floorplans For Junction Road
EPC For Junction Road
X

X

Viewing Request