Let Agreed
Holloway Road
£40,000 pax


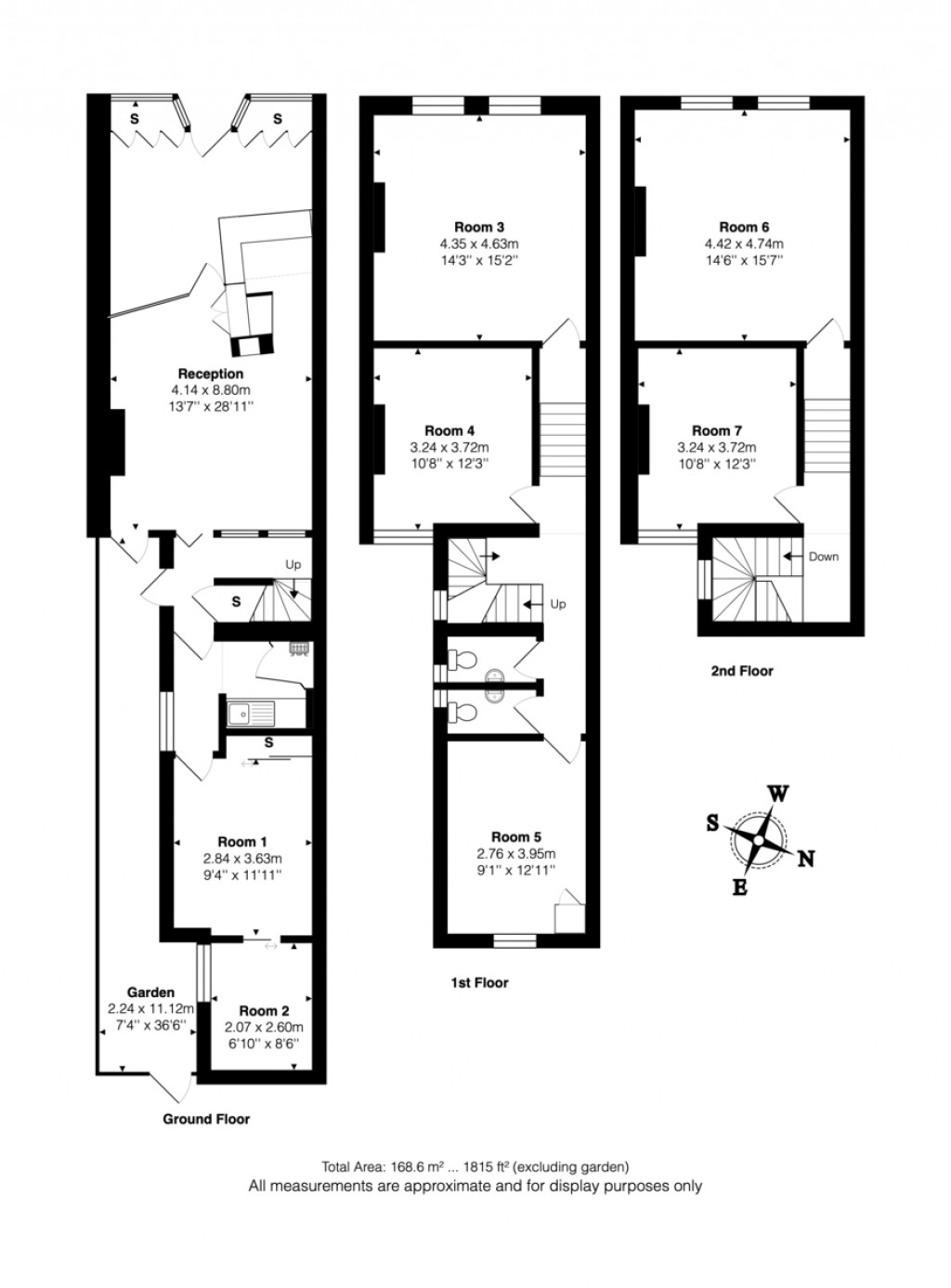
NEW LEASE - The premises are arranged over the ground, first, and second-floor levels, with access via Holloway Road. It is a self-contained building that benefits from Class E use and includes a courtyard area to the rear.

LOCATION
The premises are located midway between the junctions of Alexander Road and Tollington Way in the heart of this densely populated commercial and residential catchment area.

The area is well-served by public transport, with Holloway Road Overground station and Archway Underground Station (Northern Line) nearby, and numerous bus routes serving the immediate area. The property is also located close to Whittington Park recreational grounds, with Sainsbury's Local, Odeon Luxe Cinema, and Pure Gym a short walk away

DESCRIPTION
The premises are arranged over ground, first, and second-floor levels with access via Holloway Road.

The ground floor comprises a waiting area/reception to the front, which can be opened up to create an open-plan retail area, with a kitchenette and two office rooms to the rear, and access to a courtyard.

The first floor comprises three additional office rooms with two WCs.

The second floor comprises two additional office rooms.

The premises would be suitable for a number of uses, subject to the necessary consents.

ACCOMMODATION
Gross internal Area: 1815 Sq Ft (168.6 Sq M)

AMENITIES
New Lease
Class E Use
Courtyard
Spacious office/retail space
Kitchenette
WC's

TERMS
Available on a new full repairing and insuring lease outside the landlord & tenant act, subject to periodic rent reviews.

OUTGOINGS
Prospective tenants are advised to make their own enquiries with the Local Authority.

LEGAL COSTS
Each party to bear own legal costs.

VIEWING
Strictly via the Landlord's agent, Drivers and Norris.

office

For further details on this property please call us on:
020 7607 5001

Arrange Viewing
Floorplans For Holloway Road, London
EPC For Holloway Road, London
X

X

Viewing Request