Bed icon  5   Bath icon  4

5 bed Penthouse For Sale
Holmes Road
£5,000,000


  • arrow icon Stunning Duplex Penthouse Apartment
  • arrow icon A Space To Build to Your Own Spec
  • arrow icon 4/5 Bedrooms, 3/4 Bathrooms
  • arrow icon Reception with Open Plan Kitchen
  • arrow icon Wrap Around Roof Terrace
  • arrow icon 4th/5th Floor with Lift
  • arrow icon Car Park Spaces Available (at Extra Cost)

Stunning Duplex Penthouse Apartment * A Space To Build to Your Own Spec * 5 Bedrooms, 4 Bathrooms * Reception with Open Plan Kitchen * Wrap Around Roof Terrace * 4th/5th Floor with Lift * Car Park Spaces Available (at Extra Cost)

office

For further details on this property please call us on:
020 7607 5001

Arrange Viewing
Schools
Healthcare
Railways
Council Tax
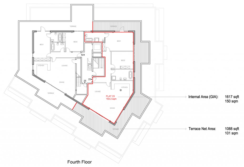
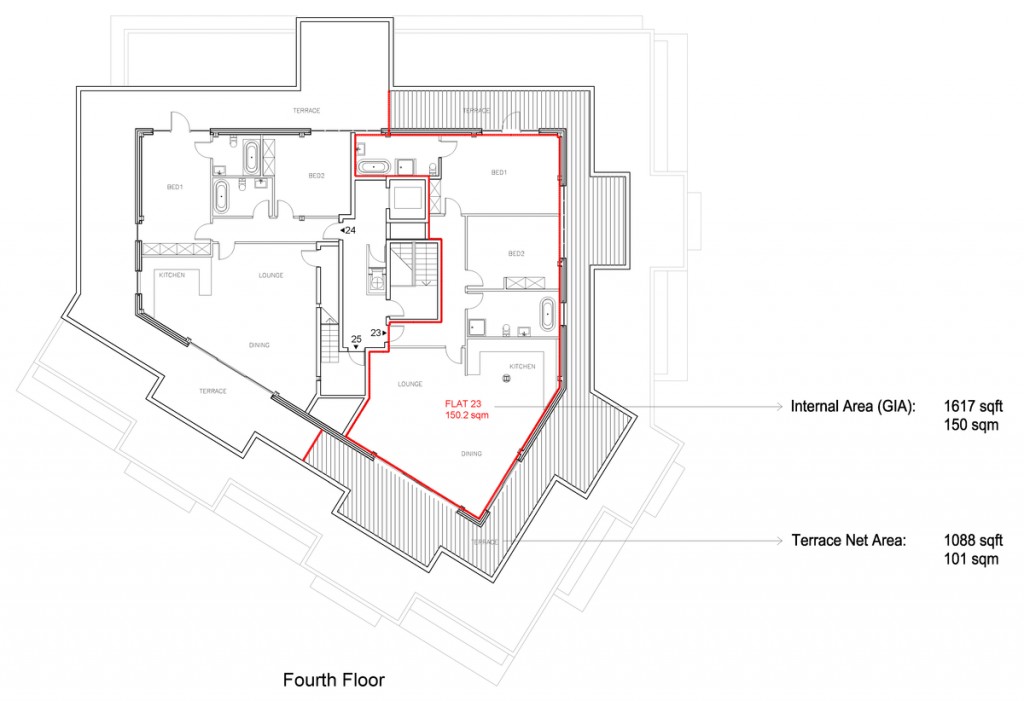
Floorplans For Holmes Road, London Floorplans For Holmes Road, London Floorplans For Holmes Road, London
EPC For Holmes Road, London
X

X

Viewing Request