For Sale
Seven Sister Road, South Tottenham
£700,000


Terraced Warehouse/Office/Gym/Studio/Training Centre occupying a prominent position along the busy Seven sisters Road.

LOCATION
The property is situated on a sought after part of Seven Sisters Road, near the junction of Gourley Street.
The area is well served by public transport with Seven Sisters Underground Station (Victoria Line) close by, and numerous bus routes serving the immediate area

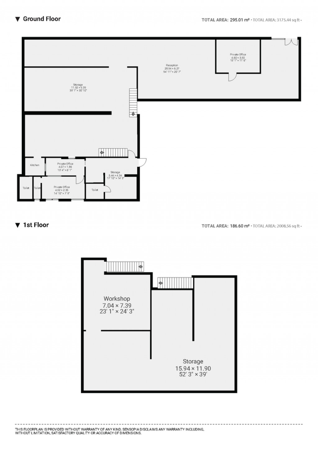
DESCRIPTION
Ground floor and First Floor E Class/B1 Use Unit with excellent natural light. The ground floor is open plan with 2x entrance points. The first floor is accessed via an internal staircase. Thought suitable for a number of trades including Warehouse/Retail/Gym/Trade Counter, subject to necessary consents, if required.

Curently occupied but can purchased with Vacant Possession.

ACCOMMODATION
Gross Internal Area: 3175.44 Sq Ft (295.01 Sq M)

AMENITIES
Concrete floor
suspended Ceiling
Close to transport Links

TERMS
Long lease For Sale

OUTGOINGS
Prospective tenants are advised to make their own enquiries with the Local Authority.

VIEWING
Strictly by appointment through the Landlord's sole agent Driver's and Norris.

office

For further details on this property please call us on:
020 7607 5001

Arrange Viewing
Floorplans For Seven Sister Road, South Tottenham
EPC For Seven Sister Road, South Tottenham
X

X

Viewing Request