Holloway Road, Holloway

Commercial Property for Sale

£950,000

Calculate your mortgage repayments

Description

LOCATION
Positioned on the western side of the Holloway Road (A1), the main route north out of London. The subject property is uniquely located 2 minutes walk from London Metropolitan University and 6 minutes from Emirates Stadium. The location is a busy thoroughfare being only 300 meters from Holloway Road Underground Station (Piccadilly Line) and numerous bus routes servicing the area.

Postcodes of N7 and N19 are predicted to have higher capital growth than the more traditional post codes of N1 and N5 in Islington.

DESCRIPTION
This near end of terrace investment opportunity consists of a retail unit which occupies the ground floor and basement and further 2 x one bedroom flats which benefit from there own separate entrance.

Commercial:
The current Commercial Tenant is on a 10 year FRI lease (granted July 2021) with an upward only rent review in the 5th year, paying £25,000 PAX

Residential:
Both are let on AST's:
Flat 1: £18,600 PA
Flat 2: £15,840 PA

TOTAL INCOME: £59,440 PA

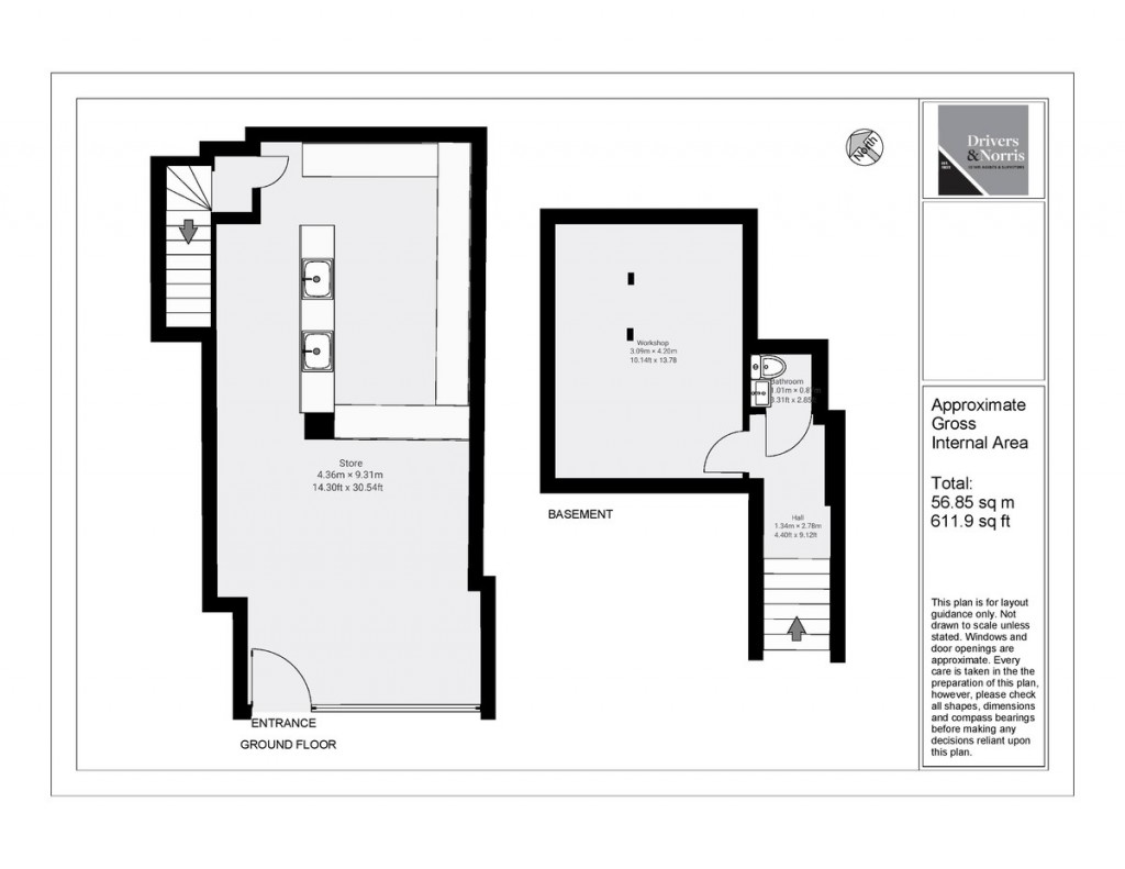
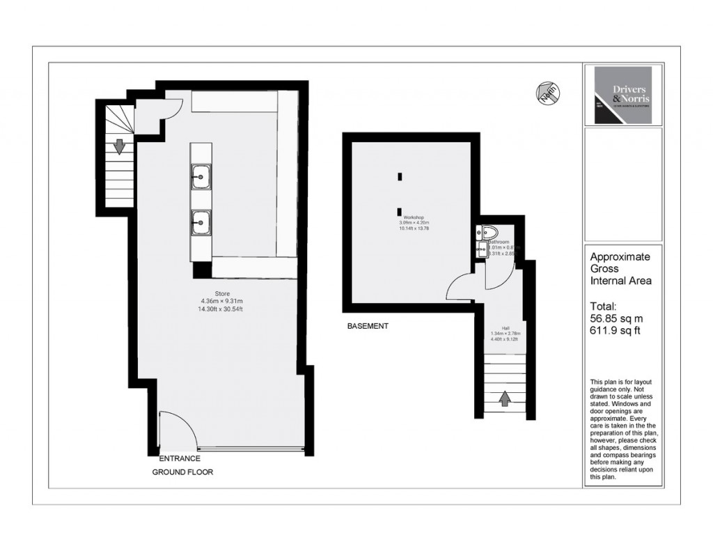
ACCOMMODATION
Retail Unit:
Ground floor - 322 sq Ft (30 Sq M)
Basement - 143 Sq Ft (13 Sq M)

Residential Units:
First Floor - 409 sq ft
Second Floor - 441 sq ft

Gross Internal Area: 1461 sq ft

AMENITIES
Close to Holloway Road station.
Moments Arsenal Football Stadium.
Adjacent to London Metropolitan University
Bordering Highbury, Holloway and Barnsbury
Prominent glass fronted shop front
Fully Let Investment

TERMS
Sale of Freehold

OUTGOINGS
Parties are advised to contact the local authority to make their own enquiries.

LEGAL COSTS
Each party to bear their own legal costs.

VIEWING
Strictly by appointment through Drivers and Norris.

Tenure: Freehold


Location


Floorplan

Floorplan Floorplan Floorplan

EPC


*This mortgage calculator is provided for general information purposes only. It's intended to provide you with an estimate of your potential mortgage payments and does not constitute an offer of finance or advice. The calculations are based on the information you provide and do not take into account your individual needs and circumstances.

The calculator does not include all the costs you will need to pay when taking out a mortgage. Your actual mortgage payments may be higher or lower than the estimates provided by this calculator. The interest rates used in the calculations are subject to change and may not reflect the actual rates available in the market.

Please note that the calculator does not consider changes in interest rates over time, early repayment charges, or any other fees and charges that may apply to your mortgage. You should always seek professional advice before making any financial decisions.

Remember, your home may be repossessed if you do not keep up repayments on your mortgage.

Calculate Your Stamp Duty
£
Results
Stamp Duty To Pay:
Effective Rate:
Tax Band % Taxable Sum Tax

£ 0
£ 0
Your estimated gross rental yield would be:
0.00%

Drivers & Norris

407/409 Holloway Road, London, N7 6HP

Similar Properties

Islington, London
For Sale

Islington, London

1 Bed Property For Sale
Guide Price £400,000
Islington, London
Under Offer

Islington, London

3 Bed Flat Under Offer
Guide Price £625,000
Islington, London
For Sale

Islington, London

3 Bed House For Sale
Guide Price £900,000