Restaurant unit close to Turnpike Lane Station and High Street.
LOCATION
Enviably located at the eastern end of Turnpike Lane less than 100 yards from Turnpike Lane Underground Station, Bus Stop and High Street. This is a vibrant residential area with a busy local High Street linking Harringay and Wood Green.
DESCRIPTION
The unit is comprised entirely over the ground floor of this mid-terraced building. Main service area is located at the front with large glass frontage, kitchen at the rear and a further store room at the back of the property. Cold room at the rear along with a small office space and further storage. Currently trading as a pizzeria but thought suitable for a variety of uses. Please note: Charcoal Grill is prohibited under the terms of the lease.
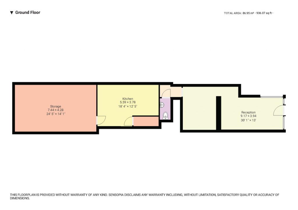
ACCOMMODATION
Gross internal floor area 936 Sq Ft 86.95 M2 
AMENITIES
Extraction
Seating
Recently refurbished
TERMS
Available immediately on assignment of an existing Full Repairing and Insuring Lease, inside the Landlord and Tenant Act.
Asking Premium £65,000
OUTGOINGS
Parties are advised to make their own enquiries with the local authority.
LEGAL COSTS
Each party to bears their own legal costs, ingoing tenant to bear Landlord legal costs associated with the assignment.
 
VIEWING
Strictly by appointment through Drivers and Norris.
