For Sale
Leeds Place
£2,500,000


Substantial freehold building comprising a 3 office units over the ground, first & second floors. Thought to be perfect for alternative use, subject to relevant planning consents.

LOCATION
Located just off the junction between Tollington Park and Turle Road in a popular residential neighbourhood. Conveniently located from Finsbury Park Station (Piccadily Line) approxaimtely a 12 minute walk away, with Crouch Hill (Overground Station), also close by, with several bus routes nearby via Stroud Green Road. Nearby operators include Nandos, Tesco's, Sainsburys Local, and numerous local and independent traders.

DESCRIPTION
The property is laid out over ground, first & second floors.

The ground floor (part flirst floor unit) comprise a large retail unit, Use Class E, with various office rooms, & meeting rooms, with a handful of kitchen & WC's areas.

The first floor comprises three additional office rooms. The property also benefits from a side yard, suitable for outdoor storage, measuring 9.13m x 2.80m. Offered with vacant possession.

First floor - This self contained unit currently benefits from being in good condition, natural light and office use, however, the unit could be suitable for various different class E users subject to the necessary consents being obtained - available with vacant possession.

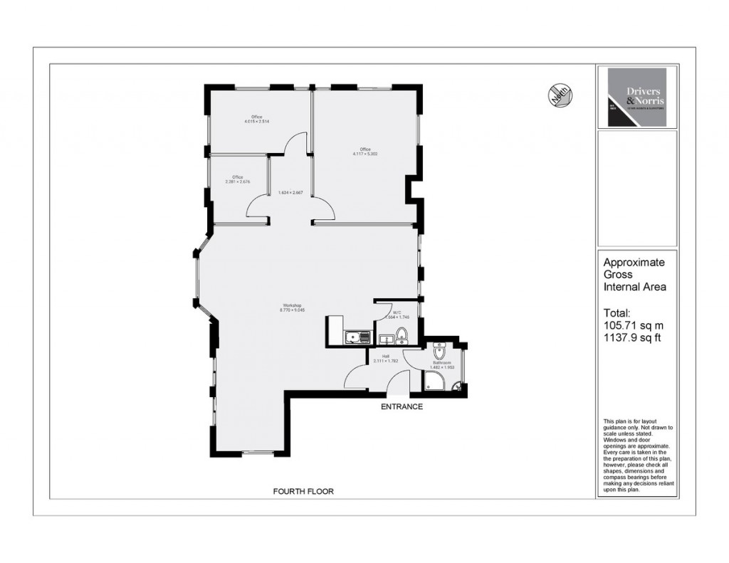
Second floor - This self-contained unit currently benefits from great ceiling height, natural light and office use, however, the unit could be suitable for various different class E users subject to the necessary consents having been obtained - available with vacant possesion.

ACCOMMODATION
Ground floor - Gross Internal Area: 3347 Sq Ft (310.95 Sq M)

First Floor office - Gross Internal Area: 1051.3 Sq Ft (97.67 Sq M)

Second floor office - Gross Internal Area: 1137.9 Sq Ft (105.71 Sq M)

AMENITIES
Freehold Sale
Natural Light
Available with vacant possession
Spacious Offices

TERMS
Freehold For Sale

OUTGOINGS
Parties are advised to make their own enquires with the local authority.

LEGAL COSTS
Each party to bear own legal costs.

VIEWING
Strictly by appointment through Drivers and Norris

office

For further details on this property please call us on:
020 7607 5001

Arrange Viewing
Floorplans For Leeds Place Floorplans For Leeds Place Floorplans For Leeds Place
EPC For Leeds Place
X

X

Viewing Request