Holloway Road, London

Commercial Property for Sale

£625,000

Calculate your mortgage repayments

Description

LOCATION
The premises are located in a prominent position on the corner of Holloway Road and Fortnam Road in the the heart of this densely populated commercial and residential catchment area. The property is the end plot of a period terrace.

The area is well-served by public transport, with Holloway Road Overground station and Archway Underground Station (Northern Line) nearby, and numerous bus routes serving the immediate area. The property is also located close to Whittington Park recreational grounds, with Sainsbury's Local, Odeon Luxe Cinema, and Pure Gym a short walk away.

DESCRIPTION
The property comprises of a long established automotive workshop where a tyre business was ran for many years, front shop with a beauty business operating at the moment, a basement that is suitable for E-class use as an office or B1 storage and 3 long leasehold residential flats comprising the upper parts.

Rental expectations and income are:
Shop - £25K pa
Automotive workshop/garage: £35K pa
Basement: £7500 pa
Ground rent: £600 pa

Total: £68,100

ACCOMMODATION
Garage - Gross internal area: 688 square feet
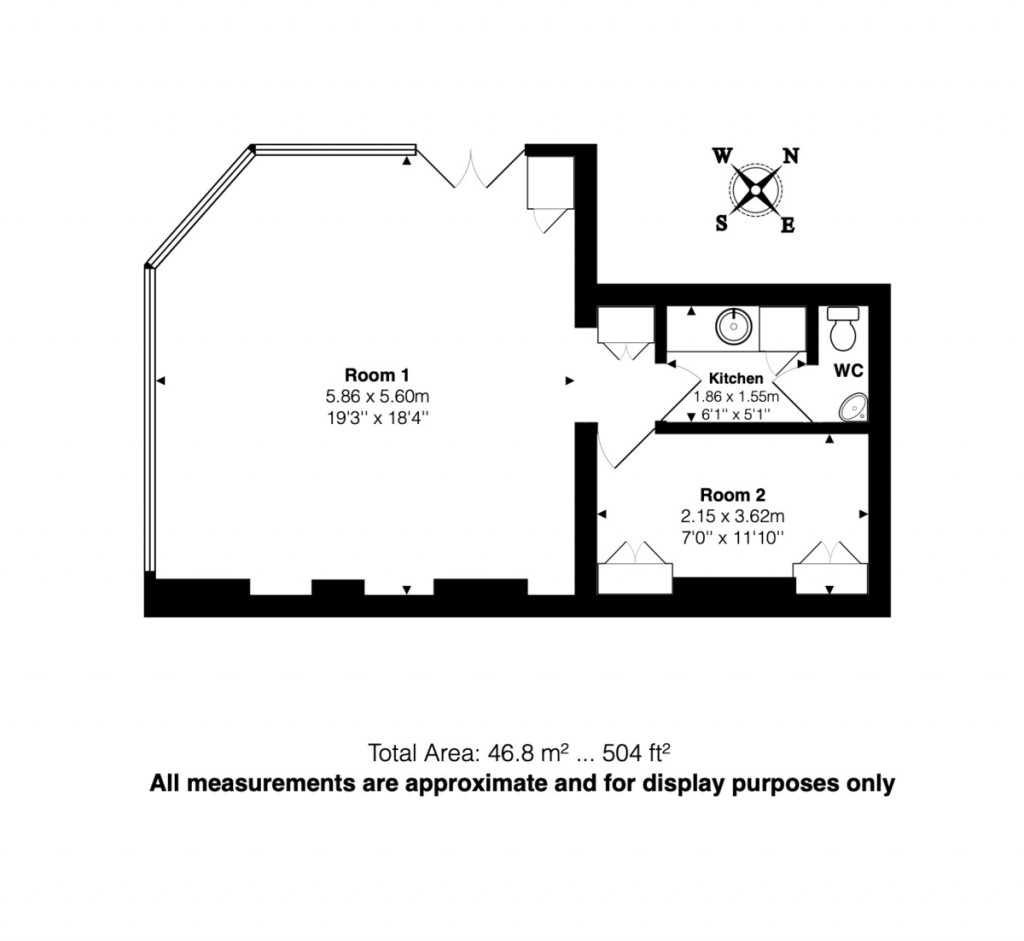
Shop - Gross internal area: 504 square feet
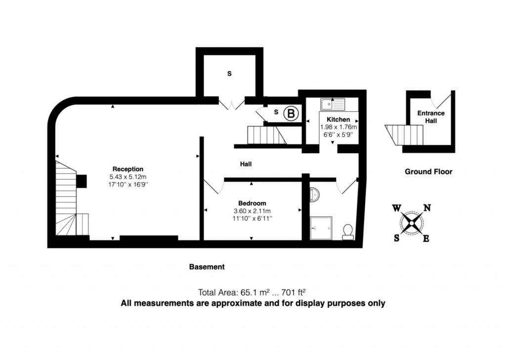
Basement - Gross internal area: 701 square feet

TERMS
Freehold sale with Vacant Possession.

OUTGOINGS
Prospective tenants are advised to make their own enquiries with the Local Authority.

LEGAL COSTS
Each party to bear own legal costs.

VIEWING
Strictly via the Landlord's agent, Drivers and Norris.

Tenure: Freehold


Location


Floorplan

Floorplan Floorplan Floorplan

EPC


*This mortgage calculator is provided for general information purposes only. It's intended to provide you with an estimate of your potential mortgage payments and does not constitute an offer of finance or advice. The calculations are based on the information you provide and do not take into account your individual needs and circumstances.

The calculator does not include all the costs you will need to pay when taking out a mortgage. Your actual mortgage payments may be higher or lower than the estimates provided by this calculator. The interest rates used in the calculations are subject to change and may not reflect the actual rates available in the market.

Please note that the calculator does not consider changes in interest rates over time, early repayment charges, or any other fees and charges that may apply to your mortgage. You should always seek professional advice before making any financial decisions.

Remember, your home may be repossessed if you do not keep up repayments on your mortgage.

Calculate Your Stamp Duty
£
Results
Stamp Duty To Pay:
Effective Rate:
Tax Band % Taxable Sum Tax

£ 0
£ 0
Your estimated gross rental yield would be:
0.00%

Drivers & Norris

407/409 Holloway Road, London, N7 6HP

Similar Properties

Islington, London
Under Offer

Islington, London

3 Bed Terraced House Under Offer
Guide Price £775,000
Hornsey Road, Hornsey Rise
For Sale

Hornsey Road, Hornsey Rise

0 Bed Commercial Property For Sale
£250,000