For Sale
Malden Road
£8,000,000


Drivers & Norris are delighted to offer this fantastic development opportunity available for sale in Kentish Town, in the London Borough of Camden.

LOCATION
The site is located on Malden Road, Kentish Town which falls within the jurisdiction of the London Borough of Camden.

The site is located within Zone 2 and is in close proximity to Gospel Oak Overground Station, Belsize Park Underground Station & Kentish Town West Overground Station. Numerous bus services serve the immediate area.

DESCRIPTION
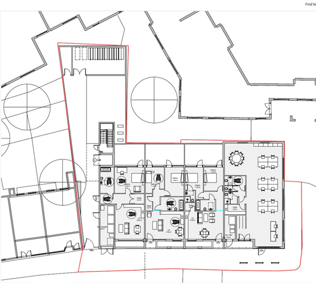
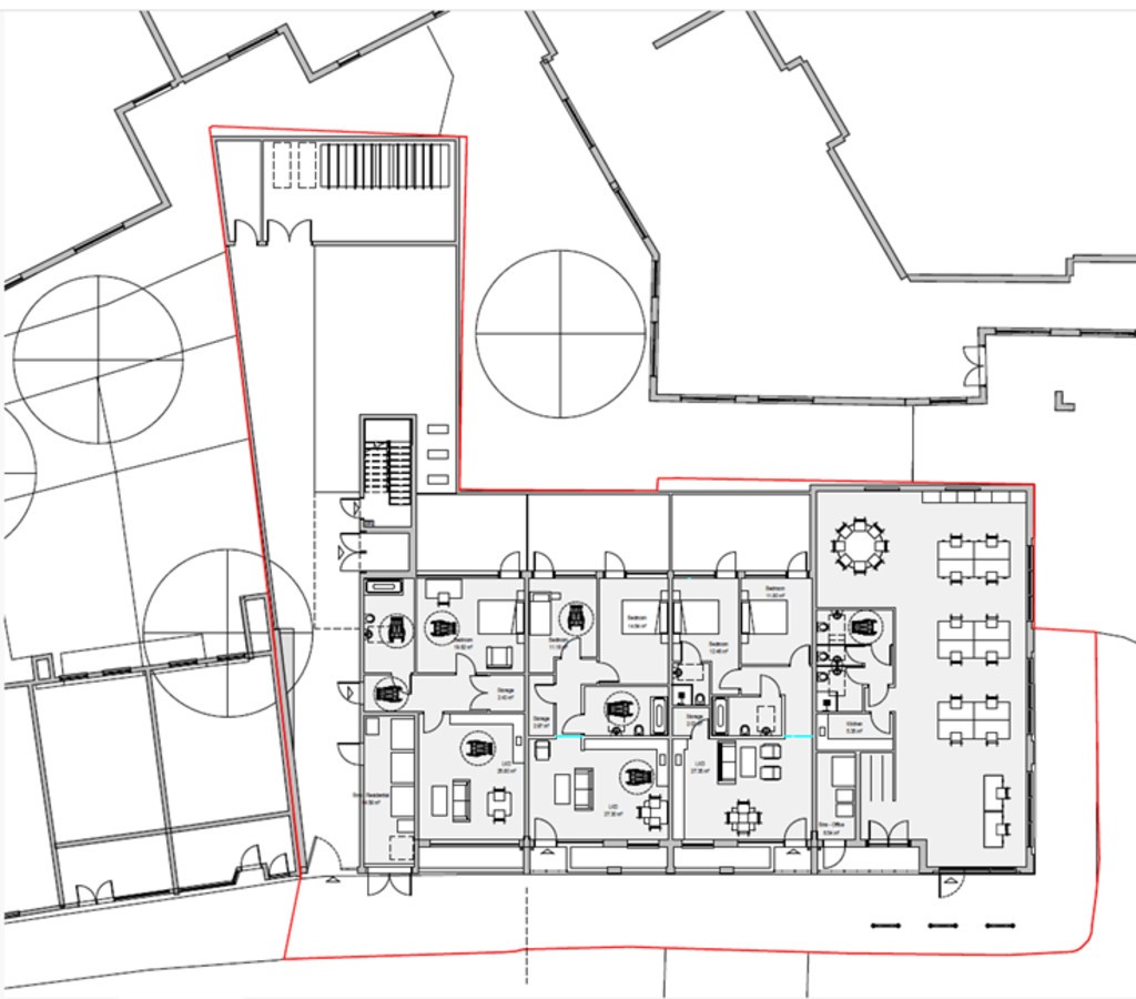
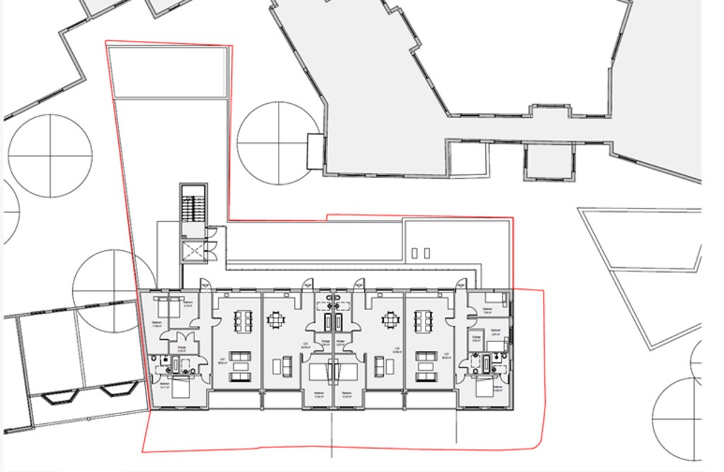
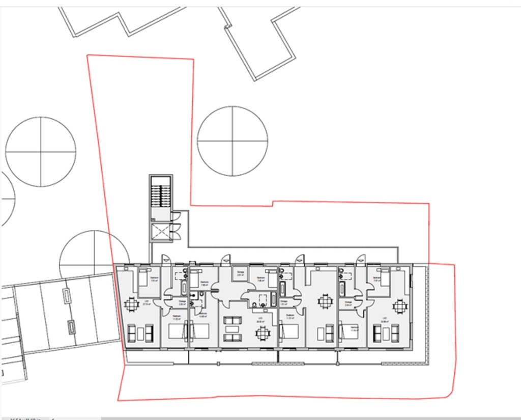
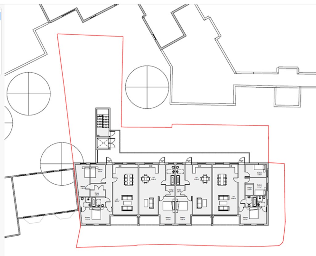
Redevelopment of the site, involving the demolition of existing structures, with planning for a 3-storey building and 15 residential dwellings in a highly sought-after area. Affordable provision for up to 3 flats, located on the ground floor.

• Breakdown:

The project includes six 1-bed, four 2-bed, and five 3-bed flats, & ground floor office

Ground Floor Office - 146 sqm (1,525 sqft)

All apartments meet housing standards..

ACCOMMODATION
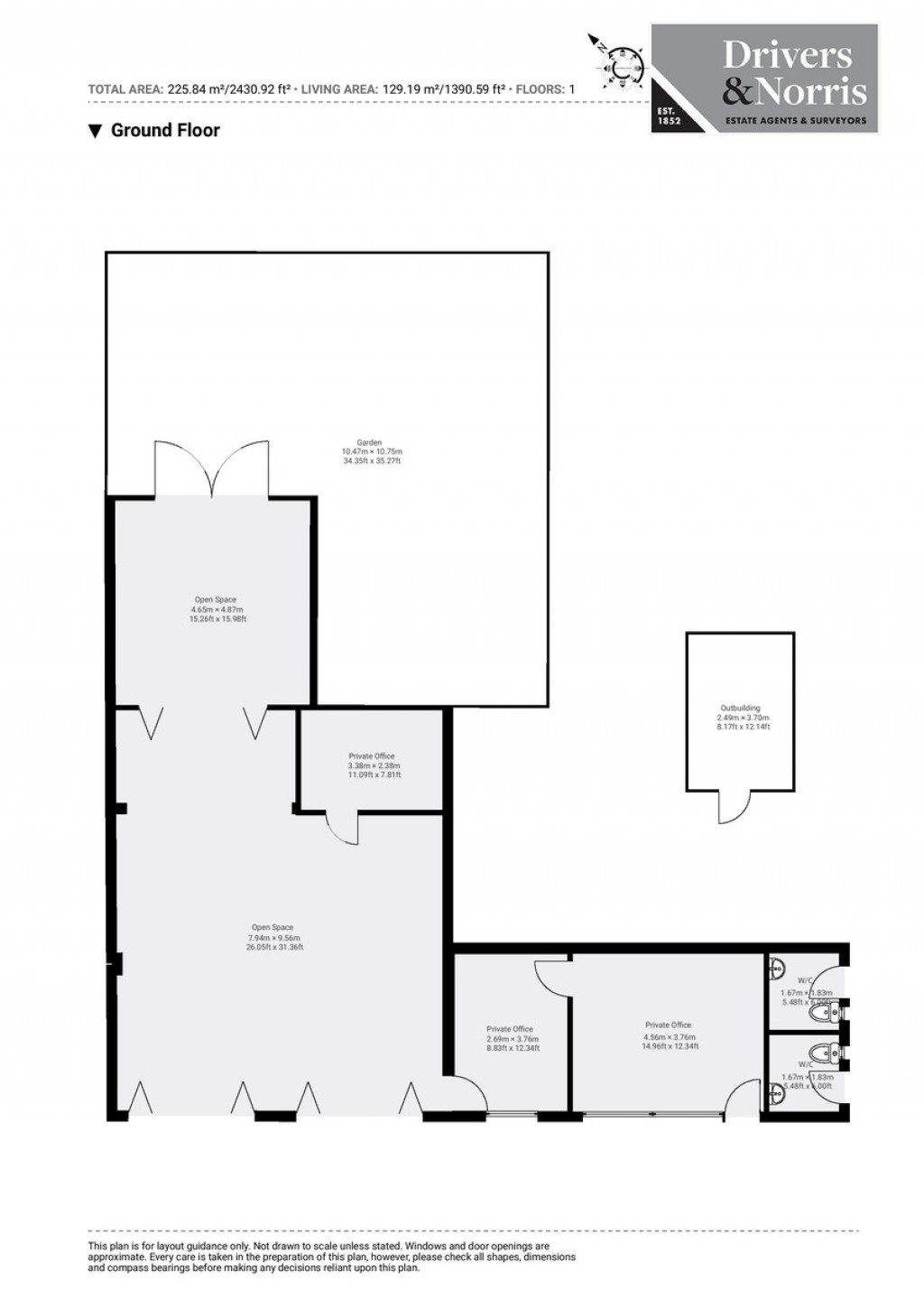
Currently used as a motor repair and MOT centre, this self-contained building is comprised of a main industrial shop floor with 3 private office rooms. The space benefits from good natural light and spacious rear garden, with fantastic forecourt space to the front.

Total GIA including building circulation, bike stores & refuse - 1283 sqm (13,407 sqft)

AMENITIES
Development Opportunity
Highly Sought After Area
15 Self-Contained Flats
Ground Floor Commercial Office
3 Affordable Units on the Ground Floor

TERMS
Freehold Sale

OUTGOINGS
Parties are advised to make their own enquiries with the local authority.

We advise interested parties to carry out their own due diligence to confirm S106 Agreement & CIL Liability.

VIEWING
Strictly by appointment through Drivers and Norris.

office

For further details on this property please call us on:
020 7607 5001

Arrange Viewing
Floorplans For Malden Road
EPC For Malden Road
X

X

Viewing Request