To Let
White Lion Street, Angel, Islington
£65,000 pax


Restaurant or bar with extraction in Angel, Islington.

LOCATION
Situated at the Barnsbury end of White Lion Street. Moments from Upper Street (A1) and the junction with Pentonville Road (towards Kings Cross) and City Road (towards Old Street and City of London).

The area benefits from a number of bus routes, with Angel Station (Northern Line) located just a 5 minute walk away. Angel Central Shopping Centre is roughly a 4-minute walk from the property. Conveniently located for all amenties and services, with high street brands close by such as Sainsbury's, Costa Coffee, Waitrose, Marks & Spencer, Superdrug, & McDonalds.

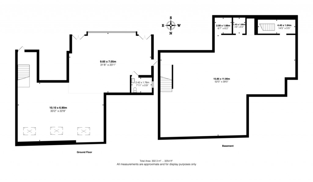
DESCRIPTION
The property comprises a Use Class E (Historic A4 - Pub) arranged over ground and basement floors. The ground floor benefits from a 26' 6" frontage. The Restaurant is a shell at the moment, it will have ventilation and extraction, to enable an operator the ability to fit out to their preferences upon legal completion.

ACCOMMODATION
Gross internal area: 3254 square feet

AMENITIES
26' 6" frontage
Victorian period buiding
Amazing location
Ground and basement

TERMS
New Full repairing and Insuring Lease to be granted to the in-going tenant. Terms to be negotiated.

OUTGOINGS
Prospective tenants are advised to make their own enquiries with the Local Authority

LEGAL COSTS
Each party to bear own costs.

VIEWING
By pre-arranged appointment

office

For further details on this property please call us on:
020 7607 5001

Arrange Viewing
Floorplans For White Lion Street, Angel, Islington
EPC For White Lion Street, Angel, Islington
X

X

Viewing Request