Bed icon  1   Bath icon  1

1 bed First Floor Flat Under Offer
Hargrave Park, Archway
£1,950 PCM Fees Apply


  • arrow icon Council Tax Band: C
  • arrow icon One Bedroom
  • arrow icon Spacious Lounge
  • arrow icon Close to Station
  • arrow icon Furnished

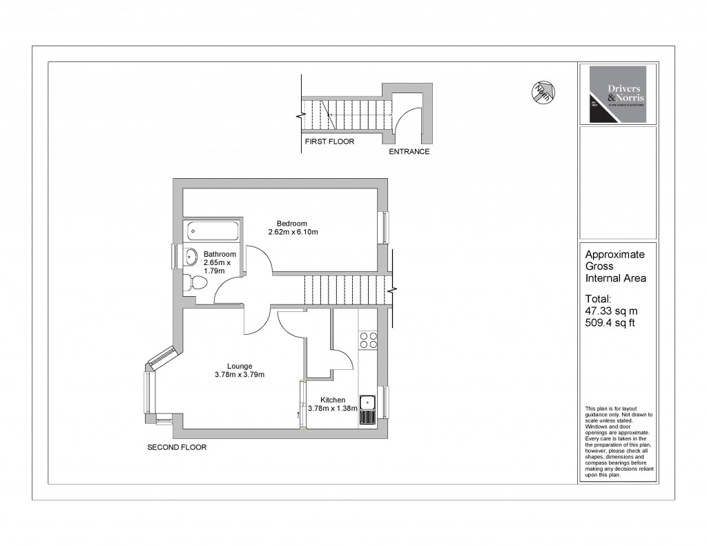
Set within a purpose built block and located moments from Archway Station, this well-presented one bedroom flat offers modern living in a highly convenient location. The property benefits from bright open-plan living, incorporating a fitted kitchen, along with a comfortable double bedroom and a modern bathroom. Offered furnished, this property is ideal for professionals seeking well-connected accommodation with excellent access to local amenities and transport links.

office

For further details on this property please call us on:
020 7607 5001

Arrange Viewing
Schools
Healthcare
Railways
Council Tax
Floorplans For Hargrave Park, Archway, London
EPC For Hargrave Park, Archway, London
X

X

Viewing Request