Bed icon  1   Bath icon  1

1 bed First Floor Flat Under Offer
Lowman Road, Islington
Offers Over £400,000


  • arrow icon Council Tax Band: D
  • arrow icon Spacious Lounge & double bedroom
  • arrow icon New double glazed sash window
  • arrow icon New Roof recently done
  • arrow icon Holloway Road station 5 minutes
  • arrow icon Period features
  • arrow icon Long Lease
  • arrow icon Close to amenities

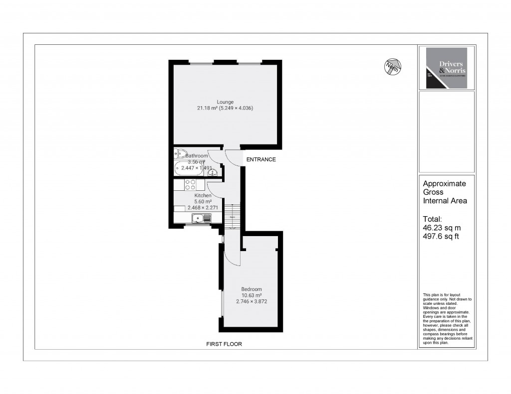
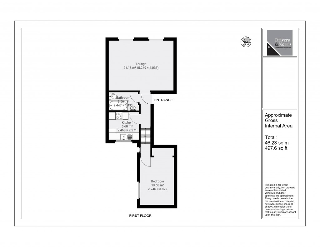
A well presented one bedroom apartment on the first floor of this imposing period property located on this quiet tree lined residential turning just moments from the vibrant Holloway Road with its array of bars, cafes ,restaurants, high street & independent shops and Holloway Road Underground Station (Piccadilly Line) The accommodation comprises, entrance hall, lounge, kitchen, bedroom and bathroom/WC and benefits from storage in each room and extensive loft storage area above the hall, bathroom and bedroom.

A well presented one bedroom apartment on the first floor of this imposing period property located on this quiet tree lined residential turning just moments from the vibrant Holloway Road with its array of bars, cafes ,restaurants, high street & independent shops and Holloway Road Underground Station (Piccadilly Line). The accommodation comprises, entrance hall, lounge, kitchen, bedroom and bathroom/WC and benefits from storage in each room and extensive loft storage area above the hall, bathroom and bedroom.

office

For further details on this property please call us on:
020 7607 5001

Download PDF
Arrange Viewing
Schools
Healthcare
Railways
Council Tax
Floorplans For Islington, London
EPC For Islington, London
X

X

Viewing Request