To Let
Block E, Queens Road, Barnet
£4,583 yearly


  • arrow icon Large Office
  • arrow icon Allocated Parking
  • arrow icon Class E Use
  • arrow icon New Lease

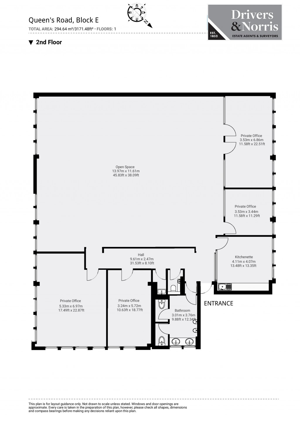
LOCATION Located just over a mile from High Barnet Underground Station, the property is also a 15-minute walk from High Barnet High Street. Queens Road is located off Wood Street, Barnet, in a peaceful residential turning. The unit is located towards the end of Wood Street, with close access to Third Field. Tenants will have easy access to a variety of cafes and restaurants along High Barnet, High Street, with retailers such as Greggs, Costa Coffee, Iceland, and the main shopping centre, The Spires. DESCRIPTION This self-contained office occupies the entire first floor. The space is primarily open-plan and includes a kitchenette, four private meeting rooms, and WC facilities. The layout offers flexible accommodation and is suitable for various uses, subject to obtaining the necessary planning consent. Rent + Service Charge (paid quartlery in advance) Estate Charge - £1186.69 Building Service Charge - £1031.12 ACCOMMODATION Gross internal floor area 3171.48 Sq Ft / 294.64 Sq M AMENITIES Allocated Parking spaces Air Conditioning (Heating & Cooling) Private Office Meeting Rooms WC facilities Kitchen Abundance of natural light Service Charge fee applicable TERMS New Full Repairing and Insuring lease will be granted to the ingoing tenant, subject to periodic rent reviews, terms to be agreed. VAT Property is elected for VAT

office

For further details on this property please call us on:
020 7607 5001

Arrange Viewing
Floorplans For Queens Road, Barnet, London
EPC For Queens Road, Barnet, London
X

X

Viewing Request