Bed icon  4   Bath icon  2

4 bed Terraced House Under Offer
Marlborough Road, Upper Holloway
Asking Price £1,225,000


  • arrow icon Council Tax Band: F
  • arrow icon Four bedrooms
  • arrow icon Two bathrooms
  • arrow icon Period features
  • arrow icon Gas central heating
  • arrow icon Short walk to Archway Station
  • arrow icon Chain free

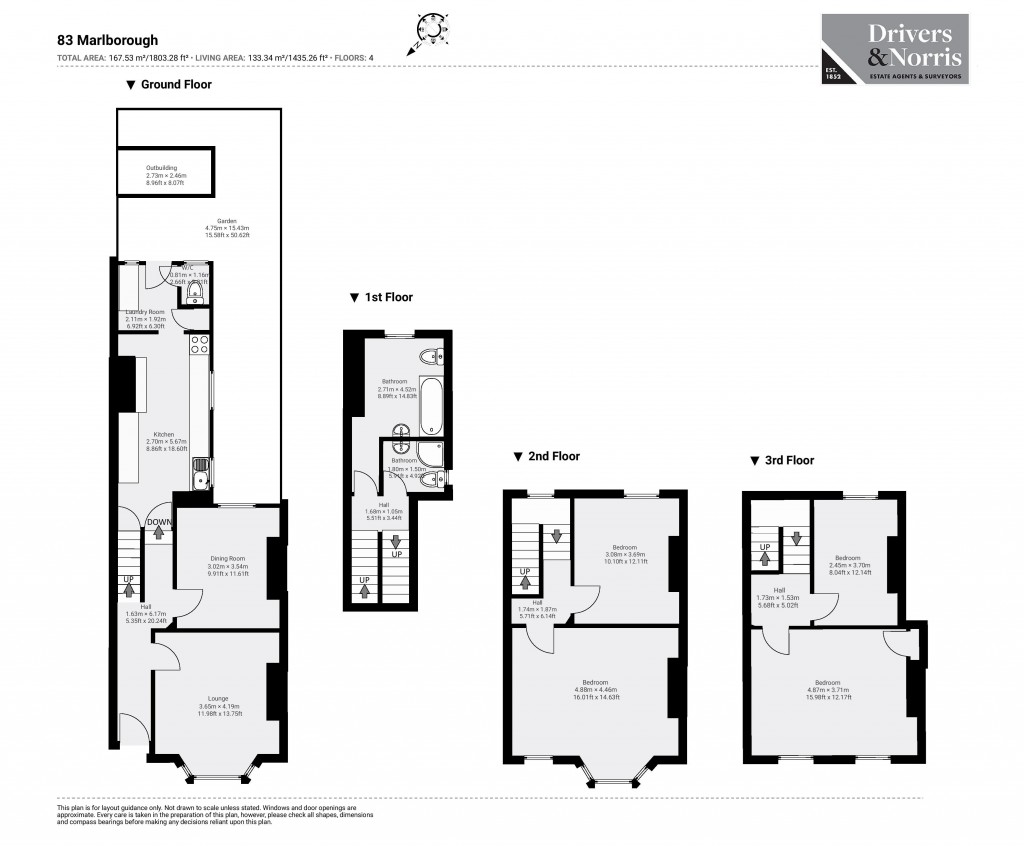
Four double bedroom two bathroom property which retains a number of period features located on this convenient residential turning which is a short distance from Upper Holloway Overground and Archway Underground stations. Close by is the vibrant Holloway Road with is array of shops, bars and restaurants with several schools within walking distance. Arranged over three floors the accommodation comprises to the ground floor an entrance hall, inter connecting lounge/dining room. fitted kitchen, utility area and guest WC, to the first floor a landing, two double bedrooms, bathroom/WC. shower room/WC, to the second floor a landing and two double bedrooms. Externally there is a small front garden and a rear garden with a south easterly aspect.

Four double bedroom two bathroom property which retains a number of period features located on this convenient residential turning which is a short distance from Upper Holloway Overground and Archway Underground stations. Close by is the vibrant Holloway Road with is array of shops, bars and restaurants with several schools within walking distance. Arranged over three floors the accommodation comprises to the ground floor an entrance hall, inter connecting lounge/dining room. fitted kitchen, utility area and guest WC, to the first floor a landing, two double bedrooms, bathroom/WC. shower room/WC, to the second floor a landing and two double bedrooms. Externally there is a small front garden and a rear garden with a south easterly aspect.

office

For further details on this property please call us on:
020 7607 5001

Download PDF
Arrange Viewing
Schools
Healthcare
Railways
Council Tax

Unsupported Video Type - contact Maintenance

Floorplans For Upper Holloway, London
EPC For Upper Holloway, London
X

X

Viewing Request