To Let
Holloway, Islington
£32,500 pax


Large retail unit available with new lease on Holloway Road, Islington, only a few minutes from Holloway Road Station and Emirates Stadium.

LOCATION
The premises are located on the East side of this extremely busy thoroughfare in the heart of this densely populated commercial and residential catchment area. Emirates Stadium is just 5 minutes walk away as is London Metropolitan University and Chapter Student housing. Nearby operators include Waitrose, The Coronet and numerous local and independent traders. Transport facilities are excellent with Holloway Road Underground Station (Piccadilly Line) nearby and numerous bus routes serving the immediate area.

DESCRIPTION
Large open E-class retail unit with potential for number of uses depending on necessary consents. Part of a mixed-use period terrace section of the road. This unit has rear access on Loman Road which is unusal for the shops on Holloway Road. Wide glass frontage, high ceilings and flexible space situated on a busy and highly visible plot.

ACCOMMODATION
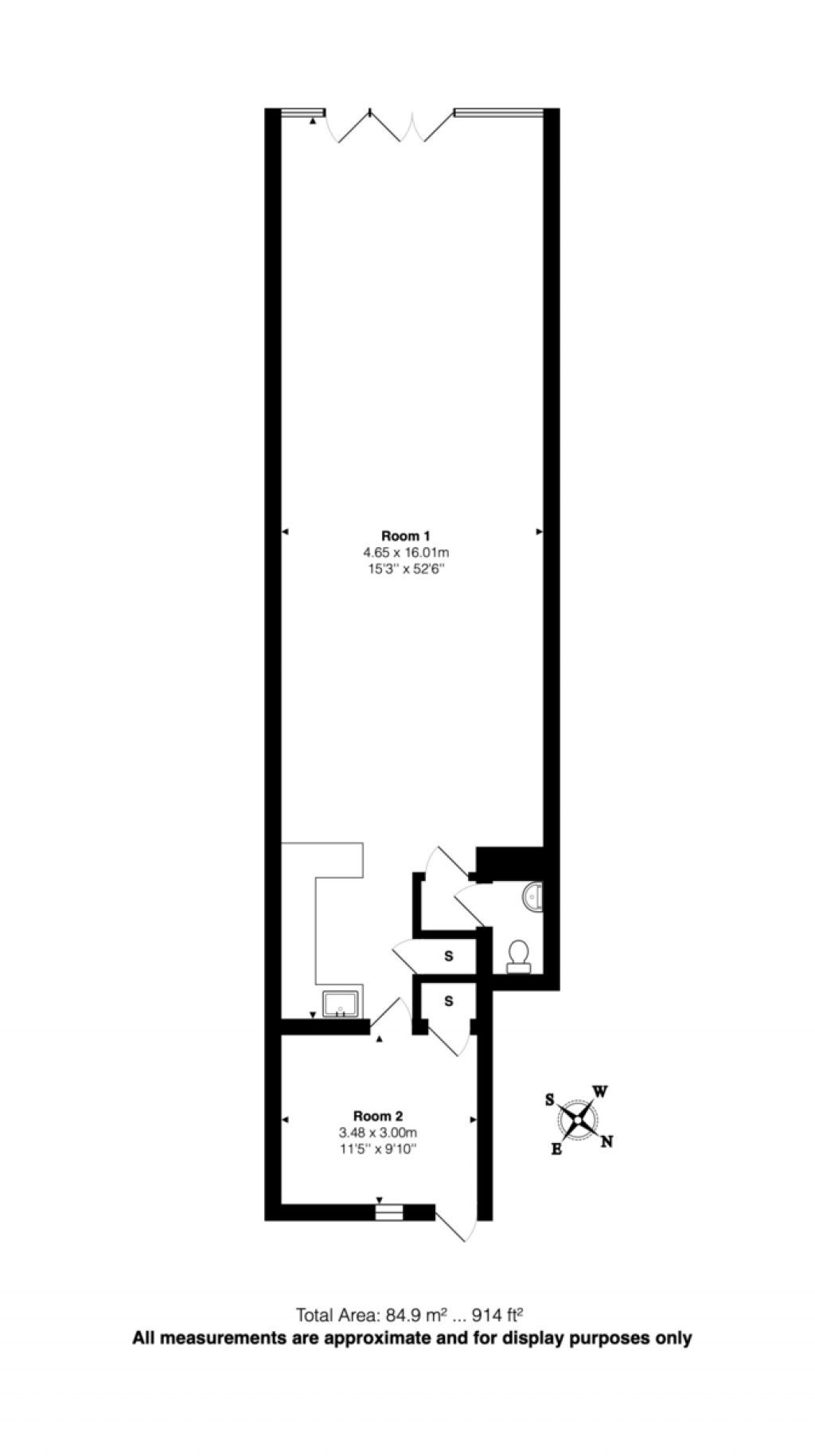
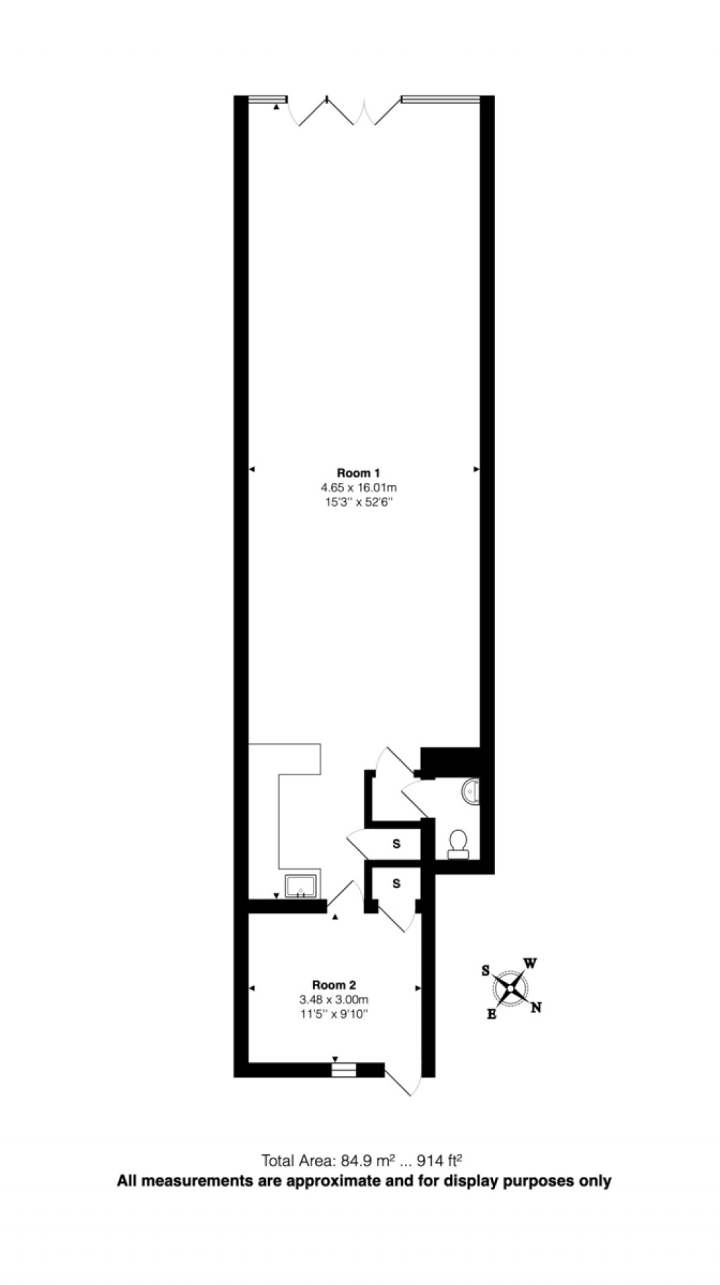
Gross internal area: 914 square feet

AMENITIES
Moments from Emirates
2 minutes' walk to Holloway Road station
Glass frontage
Shutter
Rear access
Large retail space
High ceilings
Available on new lease
WC

TERMS
Available on a new full repairing and insuring lease outside the landlord & tenant act, subject to periodic rent reviews.

OUTGOINGS
Parties are advised to make their own enquiries with the Local Authority.

LEGAL COSTS
Each party to bear their own legal costs.

VIEWING
Strictly by appointment through the Landlord's agent Driver's and Norris.

office

For further details on this property please call us on:
020 7607 5001

Arrange Viewing
Floorplans For Holloway, Islington
EPC For Holloway, Islington
X

X

Viewing Request