For Sale
Seven Sisters Road, Holloway
£1,800,000


INVESTMENT. Well positioned Freehold for Sale - consists of 2 x commercial retail units and 4 x one Bedroom Flats.

LOCATION
The premises are situated on the south side of Seven Sisters Road, at the junction with Holloway Road,in the heart of this densely populated commercial and residential catchment area. Seven Sisters Road links several major road networks, allowing for easy access to North London, Central London and the City of London.

The space is within a few yards walk from The Nags Head Shopping Centre with nearby businesses including, Peacocks, Poundland, McDonalds, Costa Coffee, Post Office and Morrisons. The area is well served by public transport with Holloway Road (Piccadilly Line), Finsbury Park (Victoria & Piccadilly Lines) and Archway (Northern Line) Underground Stations close by and numerous bus routes serving the immediate area.

DESCRIPTION
Mid-terrace mixed use building which consists of 2 x commercial unit occupying the ground floor and 4 x one bedroom flats over the upper floors.

No. 82 Commercial Tenant - 20 year FRI commencing from 4 April 2025 - Rent £30k PAX.
No. 84 Commercial Tenant - 20 year FRI commencing from 11 January 2022 - Rent £22K PAX
(84 Seven Sisters Road has a rent review on 11/01/2026 and the Landlord has served notice at £30,000 pax)

FLAT A - £1,450.00 PCM - £17,400.00 PA - AST for 1 year from 17.12.2025
FLAT B - £1,360.00 PCM - £17,100.00 PA - AST for 1 year from 24.09.2025
FLAT C - £1,450.00 PCM - £17,700.00 PA - AST for 1 year from 30.09.2025
FLAT D - £1,450.00 PCM - £18,000.00 PA - AST for 2 years from 30.09.2025

Total Income: £122,200 pa

ACCOMMODATION
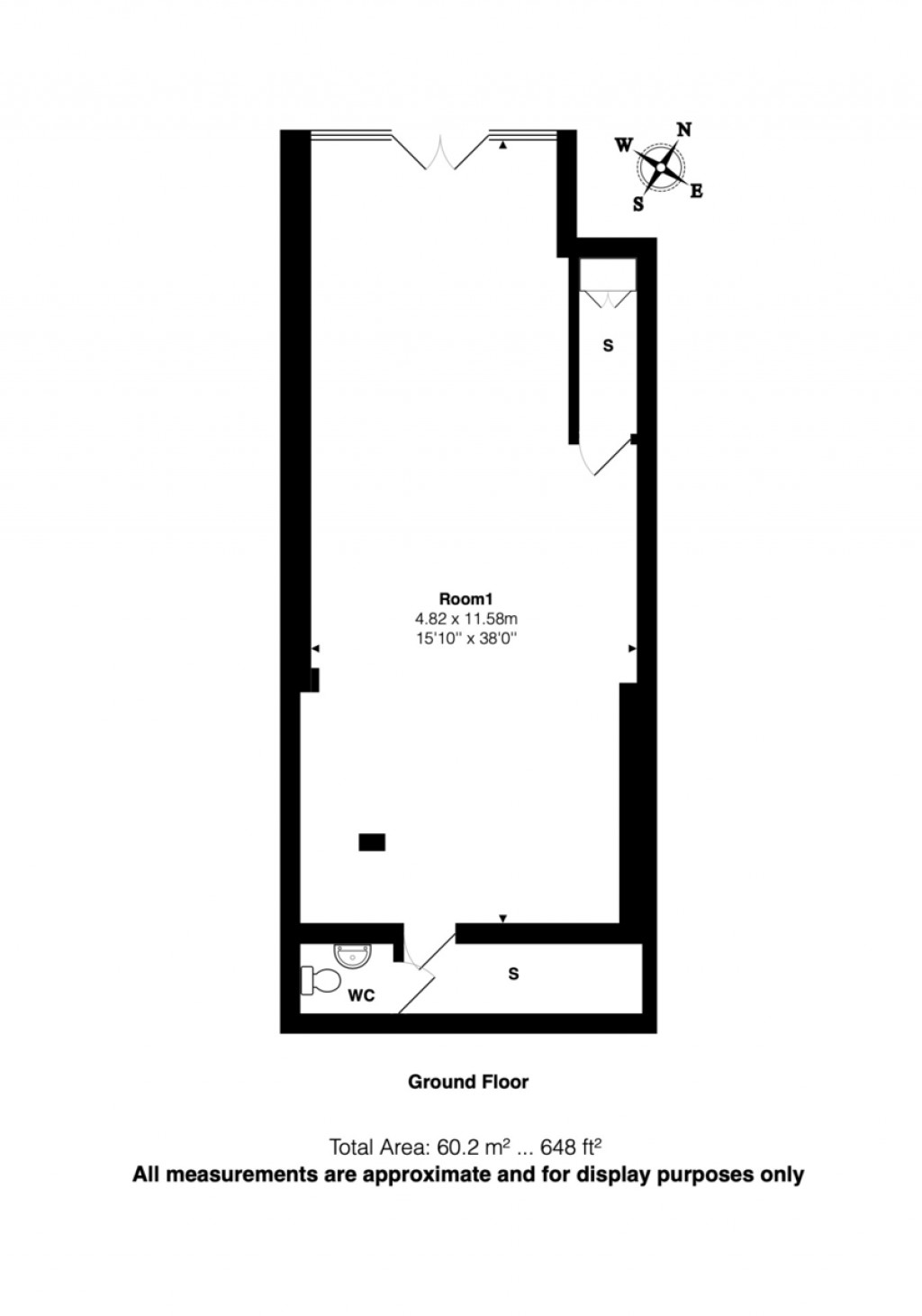
No. 82 - 648 Sq Ft
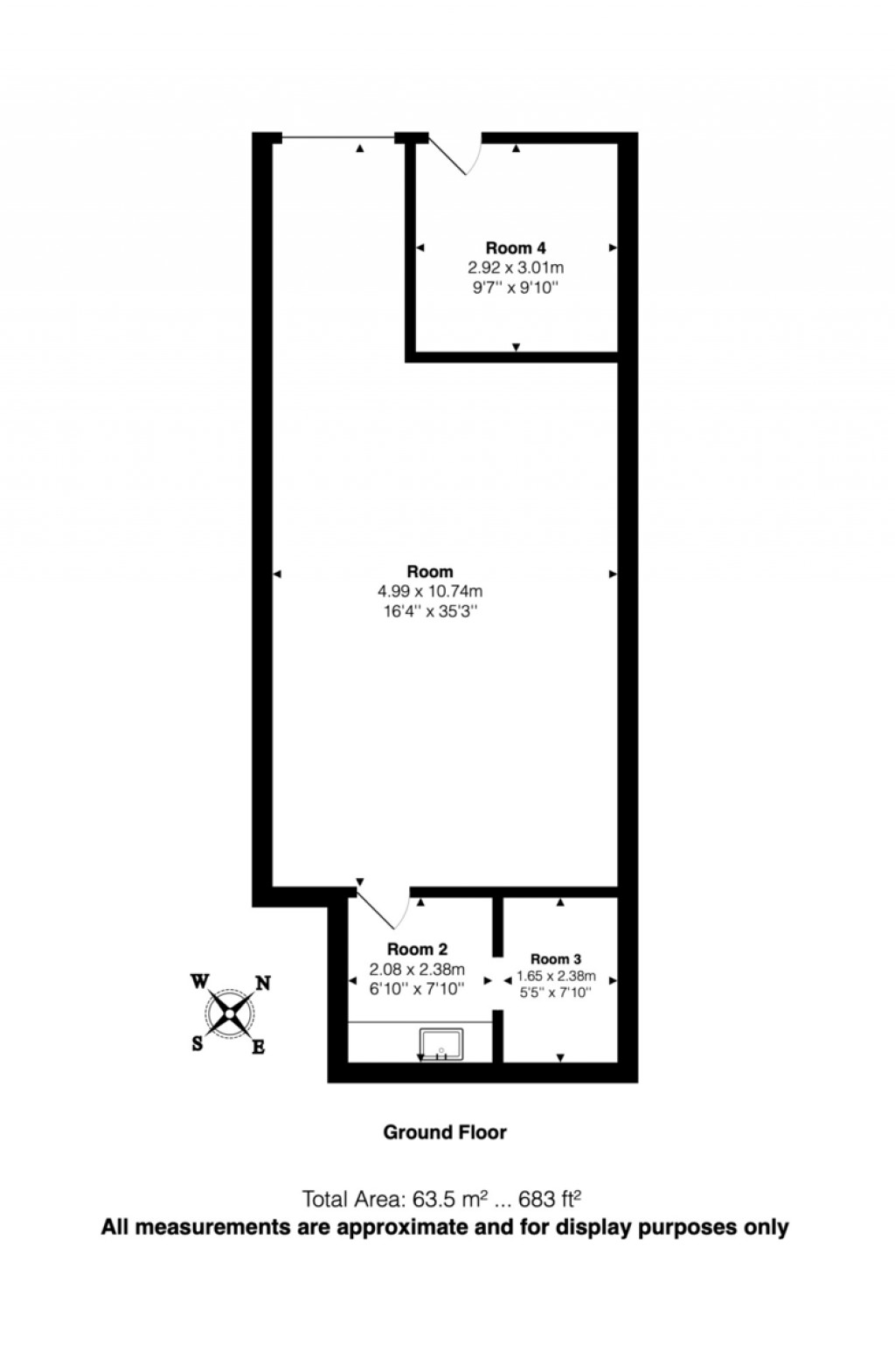
No. 84 - 683 Sq Ft

Net Internal Area: 1331 Sq Ft

Flat A - 1st floor - 1x bedroom - 419 Sq Ft
Flat B - 1st floor - 1x bedroom - 448 Sq Ft
Flat C - 2nd floor -1x bedroom - 415 Sq Ft
Flat d - 2nd floor - 1x bedroom - 452 Sq Ft

Gross Internal Area: 3065 Sq Ft

TERMS
Sale of Freehold

OUTGOINGS
Parties are advised to contact the local authority to make their own enquiries.

VIEWING
Strictly by appointment through Drivers and Norris.

office

For further details on this property please call us on:
020 7607 5001

Arrange Viewing
Floorplans For Seven Sisters Road, Holloway Floorplans For Seven Sisters Road, Holloway Floorplans For Seven Sisters Road, Holloway Floorplans For Seven Sisters Road, Holloway Floorplans For Seven Sisters Road, Holloway Floorplans For Seven Sisters Road, Holloway
EPC For Seven Sisters Road, Holloway
X

X

Viewing Request