Under Offer
Blackstock Road, Finsbury Park
£24,000 pax


ASSIGNEMENT OF EXISTING LEASE - an opportunity to take over this ground-floor restaurant along the popular junction of Blackstock Road. The unit has been refurbished to a very high standard - viewings highly recommended.

LOCATION
The unit is located on the ground floor of a mixed used building along Blackstock Road. The property offers great transport links with Finsbury Park Underground Station and Arsenal Underground Station close by. The property is situated between the junctions of Lydon Row and Mountgrove Road.

DESCRIPTION
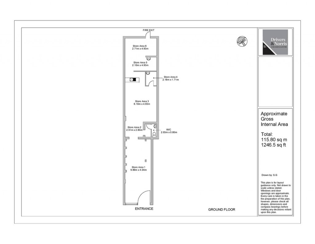
Currently operating as an restaurant with two seating areas to the front of the property, with Two WC's, & a bar area. To the rear of the property is a well maintained large kitchen with full extraction, storage rooms, & fire exit door.


Premium sought for goodwill, fixtures & fittings - offers in excess of £50,000.

ACCOMMODATION
Gross Internal Area: 1,246.5 Sq Ft (115.80 Sq M)

AMENITIES
Refurbished to a very high standard
Ground Floor
Close to Arsenal stadium
WC's
Kitchen
Extraction
Premises License

TERMS
Available on assignment of existing 10 year full repairing and insuring lease commencing from April 2017, inside the landlord & tenant act.

Premium sought for goodwill, fixtures & fittings - offers in excess of £50,000.

OUTGOINGS
Parties are advised to make enquiries with the local authority.

VIEWING
Strictly by appointment through Sole Agents Drivers and Norris

office

For further details on this property please call us on:
020 7607 5001

Arrange Viewing
Floorplans For Blackstock Road, Finsbury Park, London
EPC For Blackstock Road, Finsbury Park, London
X

X

Viewing Request