Bed icon  2   Bath icon  1

2 bed Semi Detached House Reserved
Sussex Way, Holloway
£2,300 PCM Fees Apply


  • arrow icon Council Tax Band: D
  • arrow icon House
  • arrow icon Garden
  • arrow icon Fitted Kitchen
  • arrow icon Unfurnished

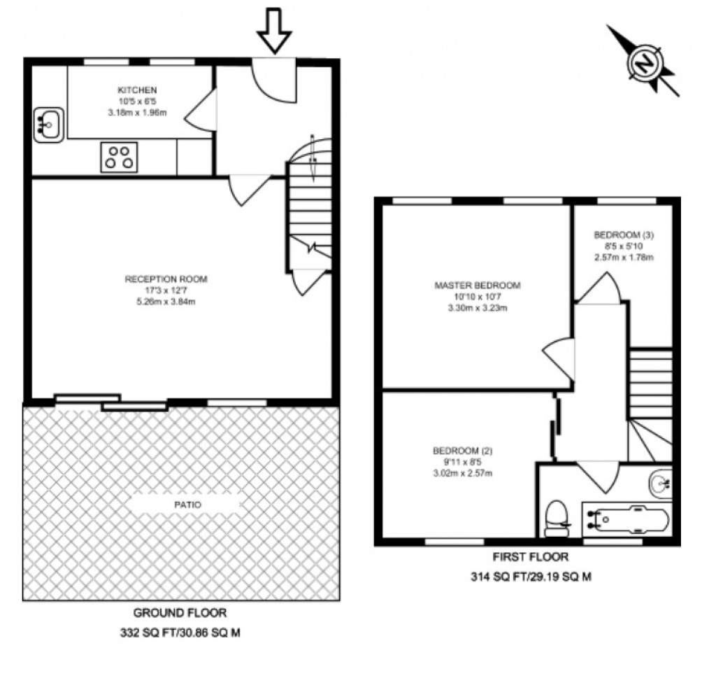
A modern semi-detached house set on a quiet residential road in the heart of Holloway. The property comprises a fully fitted kitchen, a spacious lounge with doors opening onto a private, secluded paved garden, two well-proportioned double bedrooms, and an additional single room ideal as a study or home office. Offered unfurnished, this property is well suited to professional tenants or a small family seeking a peaceful location with excellent local amenities and transport links.

office

For further details on this property please call us on:
020 7607 5001

Arrange Viewing
Schools
Healthcare
Railways
Council Tax
Floorplans For Sussex Way, Holloway, London
EPC For Sussex Way, Holloway, London
X

X

Viewing Request