Bed icon  2   Bath icon  1

2 bed Land For Sale
Brecknock Road, Camden
Offers In Excess Of £400,000


  • arrow icon Council Tax Band: N
  • arrow icon Freehold
  • arrow icon Site with Planning
  • arrow icon Residential Area
  • arrow icon Contemporary Design
  • arrow icon Two Storey
  • arrow icon Terrace

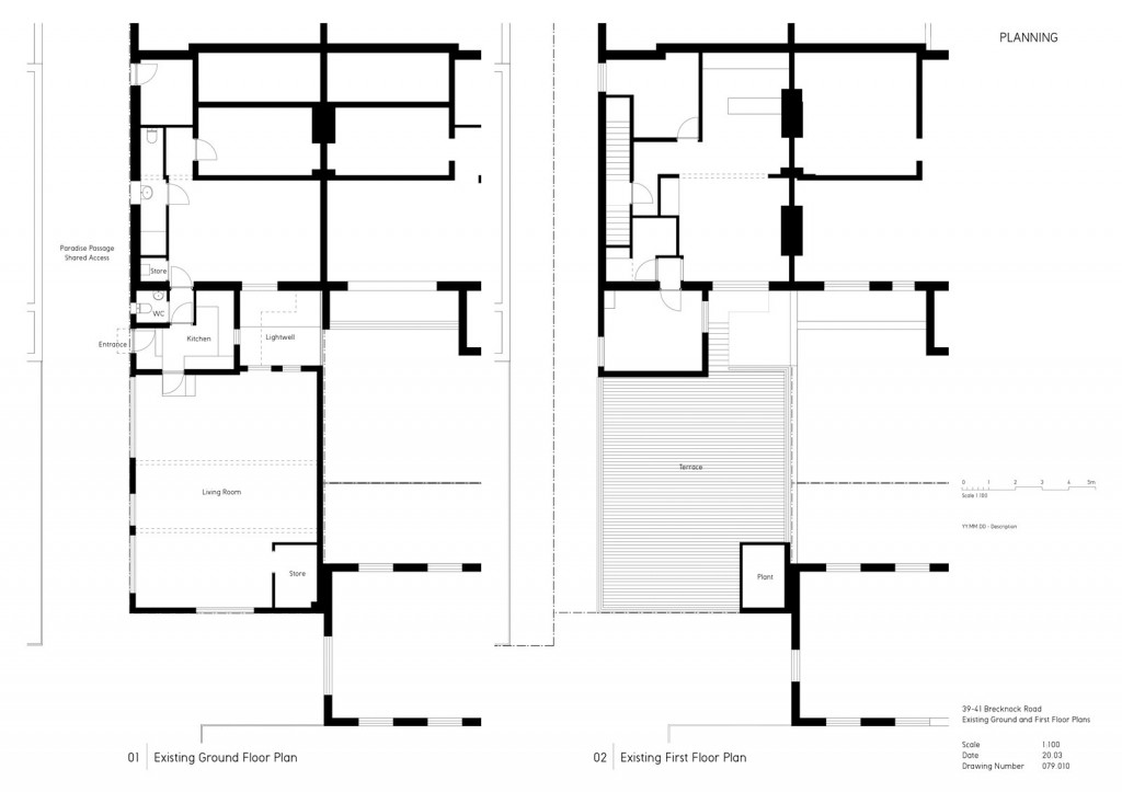
Site sold with planning for a 2 bedroom, 2 storey home only 10 min walk from Kentish Town.

Located at the London Borough of Camden west side of Brecknock Road which connects with Camden Road and York Way at the southern end. The property is less than a 15 minutes walk from Kentish Town Underground / Rail Station to the east and Tufnell Park Underground Station to the north. Numerous bus routes service the immediate area offering quick connections to Camden, Kings Cross, Euston, Bloomsbury and the West End and the City. The site is accessed via a secluded drive way serving 2 end of terrace buildings. Located at the rear of a mixed use building, the space has most recently been used as a recording studio / storage space. The planning was granted earlier this year for a 2-3 bedroom house with a study, approx 93 sq m. This is a rare opportunity for a unique build in a sought after residential area with excellent amenities right on its doorstep. The contemporary design features aluminium framed living room door that opens onto propose terrace area, enclosed with metal balustrade and privacy screen with planters. A green roof has been introduced to minimise the effects of climate change. There is also a recessed area allowing for bins / store area and cycle parking. Approved plans allow for 2 double bedrooms on the ground floor one with en-suite, a further family bathroom and a study/ 3rd bedroom. The first floor is entirely occupied by the spacious open plan living space with kitchen and access to the private terrace.

office

For further details on this property please call us on:
020 7607 5001

Download PDF
Arrange Viewing
Schools
Healthcare
Railways
Council Tax
EPC For Brecknock Road, Camden, London
X

X

Viewing Request