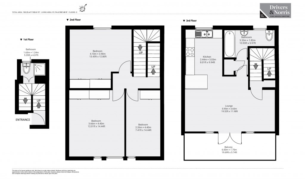
Bed icon  3   Bath icon  1

3 bed Flat To Let
Royal College Street, Camden
£3,500 PCM Fees Apply


  • arrow icon Council Tax Band: D
  • arrow icon - Private Terrace
  • arrow icon - Wood Flooring
  • arrow icon - Fitted Kitchen
  • arrow icon - Furnished

Three bedroom TOP FLOOR FLAT set on RESIDENTIAL STREET and just a short walk from CAMDEN STATIONS. Benefitting from OPEN PLAN LIVING, fitted kitchen, three double bedroom, tow bathrooms and PRIVATE TERRACE. Furnished

office

For further details on this property please call us on:
020 7607 5001

Arrange Viewing
Schools
Healthcare
Railways
Council Tax
Floorplans For Camden, London
EPC For Camden, London
X

X

Viewing Request