Bed icon  1   Bath icon  1

1 bed Flat Under Offer
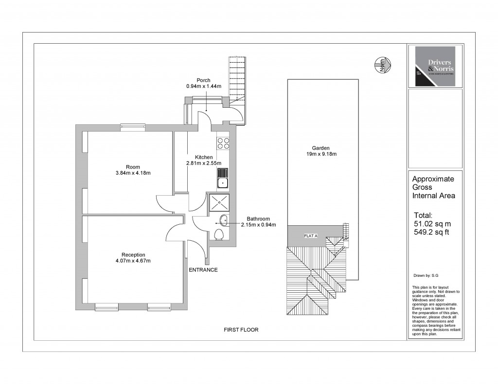
Parkhurst Road, Islington
£2,000 PCM Fees Apply


  • arrow icon Council Tax Band: C
  • arrow icon Recently Redecorated
  • arrow icon Fitted Kitchen
  • arrow icon Shared Garden
  • arrow icon Furnished

Set within a charming period conversion, this well-presented one bedroom flat is ideally located just a short walk from Holloway Station, offering excellent transport links and local amenities. The property benefits from a spacious lounge, a separate fitted kitchen with access to a shared garden, a generous double bedroom, and a modern bathroom. Available furnished or part-furnished, this home is well suited to professionals seeking character accommodation in a highly convenient location.

office

For further details on this property please call us on:
020 7607 5001

Arrange Viewing
Schools
Healthcare
Railways
Council Tax
Floorplans For Islington, London
EPC For Islington, London
X

X

Viewing Request