Bed icon  4   Bath icon  1

4 bed End Terrace House Under Offer
Ewe Close, Islington
Offers Over £775,000


  • arrow icon Council Tax Band: D
  • arrow icon Freehold House
  • arrow icon End-Of-Terrace
  • arrow icon Four Bedrooms
  • arrow icon Arranged Over Three Main Floors
  • arrow icon Private Garden
  • arrow icon Chain Free
  • arrow icon Caledonian Road Tube Station 0.3m
  • arrow icon Adjacent To Caledonian Park & Clock Tower

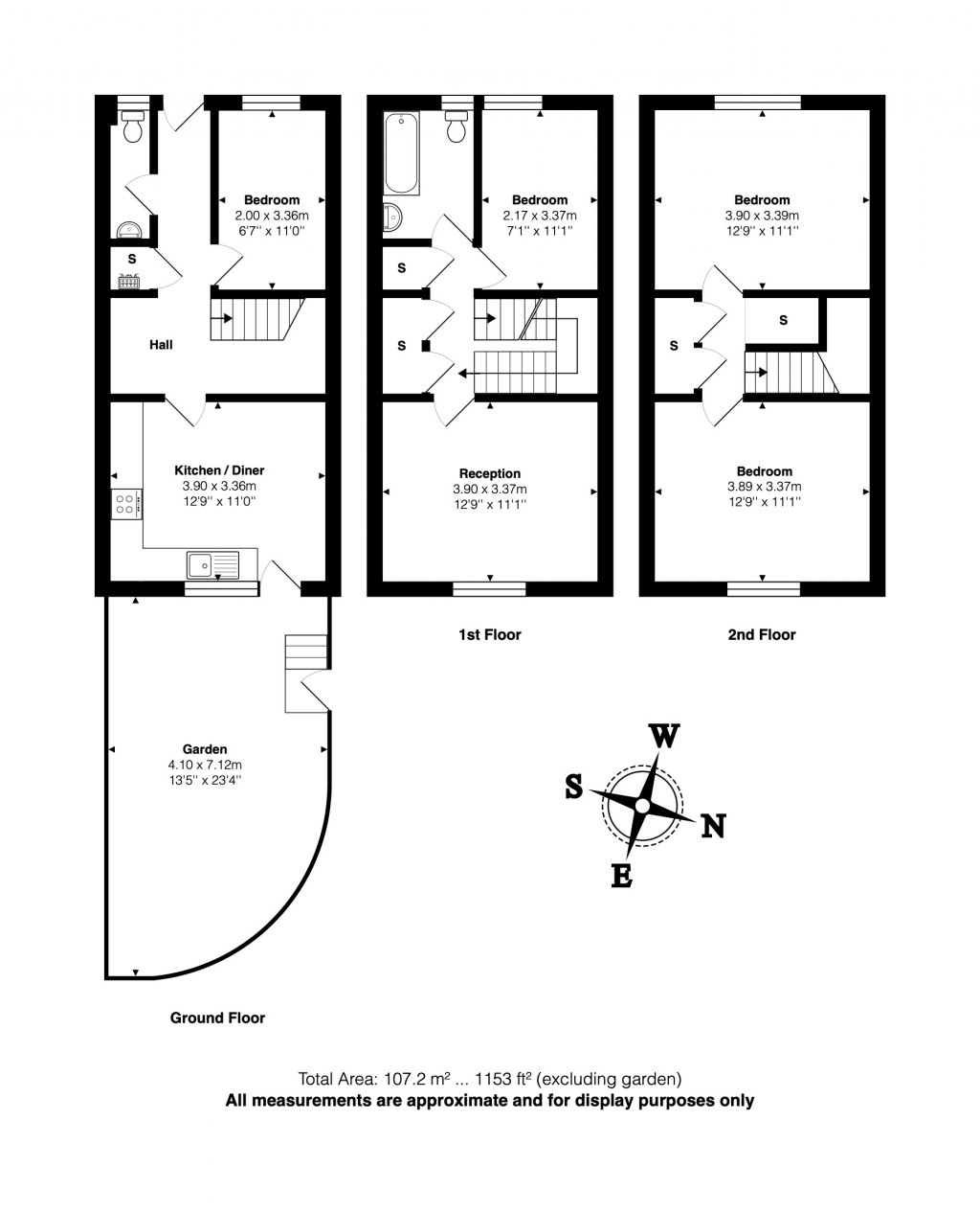
Set within a quiet, modern cul-de-sac just off Market Road and sitting beside the green open space of Caledonian Park, with its striking Grade II Listed Clock Tower, this bright and thoughtfully arranged family home offers generous and flexible accommodation across three principal floors. The ground floor is centred around a spacious kitchen and dining room stretching across the rear of the house, opening directly onto a private, low-maintenance paved garden, an ideal spot for summer entertaining or al-fresco dining. This level also includes a guest cloakroom/W.C. and a versatile fourth bedroom, perfectly suited to use as a study, workspace, playroom or guest room. On the first floor, a full-width reception room overlooks the garden, providing a peaceful and inviting setting for everyday living. A further bedroom and the main family bathroom complete this level. The top floor hosts two generous double bedrooms, each benefitting from excellent natural light and pleasant outlooks. Ewe Close enjoys superb access to transport and local amenities. Caledonian Road Underground Station (Piccadilly Line) is just 0.3m, while excellent bus routes along Caledonian Road, Hillmarton Road and York Way offer quick links across London. The home is conveniently positioned for Kings Cross, Granary Square, Holloway Road and Upper Street, all offering an extensive selection of cafés, restaurants, independent shops and supermarkets.

A delightful four bedroom end of terrace house arranged over three stories with a private garden is conveniently located within easy reach of Caledonian Road underground station and the open green spaces of Caledonian Park which features the historic Caledonian Clock Tower, which allows for magnificent views across the London. Upon entering the property, the entranceway leads to a downstairs WC, storage cupboard and a versatile space which is currently set up as a bedroom. To the rear of the plan lies the eat in kitchen, where worktop and storage space is plentiful. Direct access from the kitchen leads into the sizeable garden. Ascending to the first floor, the bright living room overlooks the garden. A further bedroom, storage cupboard and three piece bathroom suite complete this storey. On the second floor lie two generous double bedrooms with a generous storage cupboard seperating the two. The property has recently had new double glasing installed throughout. This superb home is walking distance to all the local amenities that Caledonian Road has to offer such as restaurants, supermarkets, boutique shops and trendy cafe. Holloway Road and Camden Town are also within easy reach.

office

For further details on this property please call us on:
020 7607 5001

Download PDF
Arrange Viewing
Schools
Healthcare
Railways
Council Tax
Floorplans For Islington, London
EPC For Islington, London
X

X

Viewing Request