Bed icon  1   Bath icon  1

1 bed First Floor Flat For Sale
Manor Gardens, Holloway
Asking Price £490,000


  • arrow icon Council Tax Band: E
  • arrow icon Grade II Listed Building
  • arrow icon Modern Kitchen
  • arrow icon Contemporary Bathroom Suite
  • arrow icon Underground Parking Space
  • arrow icon 24 Hour Concierge
  • arrow icon Gym With Sauna & Steam Room
  • arrow icon Wonderful Communal Roof Terrace
  • arrow icon Moments From local shops

A charming and newly refurbished New York Loft Style Duplex Apartment with private parking space, located within a grand Landmark building in one of North London’s most sought after locations.

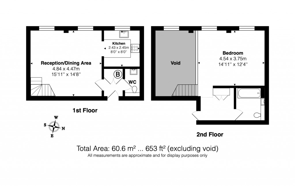
Originally built between 1908-1911 with strong French Architectural influences this enchanting and very spacious one bedroom duplex apartment located within a former GPO Money Order Office has been designed for maximum entertaining space and modern living with interiors crafted by design engineers. Entering on the first floor the reception with high ceilings opens up through the whole apartment flooded by light through the industrial sized Crittall windows. The original kitchen has been replaced with sleek, midnight-blue units incorporating integrated appliances finished with polished concrete work tops. Ascending to the second floor from the bespoke’ skeleton staircase with wooden risers, the mezzanine offers a very spacious bedroom area and contemporary bathroom suite that features an oversized walk in shower. This charming apartment further benefits from reclaimed parquet wood flooring, zonal lighting, closet W.C on the lower floor and private parking space in the gated underground car park. The Grade II landmark Beaux Arts Building affords its residents with a 24 concierge service evident upon entering the grand foyer, three beautiful landscaped gardens complete with water fountain, modern fitness centre, steam room, sauna and roof terrace that offer far reaching views across London’s changing skyline. Manor Gardens is located within an area of culture that benefits from a wide range of amenities including supermarkets, eateries and coffee shops on both nearby Holloway Road & Stroud Green Road. The ever popular Upper Street is within easy reach by foot or short bus ride and offers further boutiques, restaurants and entertainment facilities. The area is serviced by a number of transport links including the Underground Stations of Holloway Road (0.7 miles away), Finsbury Park (0.9 miles away), Archway (0.8 miles away) and Upper Holloway Overground Station (0.4 miles away) and direct buses into the City.

office

For further details on this property please call us on:
020 7607 5001

Download PDF
Arrange Viewing
Schools
Healthcare
Railways
Council Tax
Floorplans For Holloway, London
EPC For Holloway, London
X

X

Viewing Request