Bed icon  3   Bath icon  1

3 bed Terraced Flat Under Offer
Widdenham Road, Islington
Offers In Excess Of £750,000


  • arrow icon Red Brick Edwardian Conversion
  • arrow icon Fully Refurbished Throughout
  • arrow icon Three Bedrooms
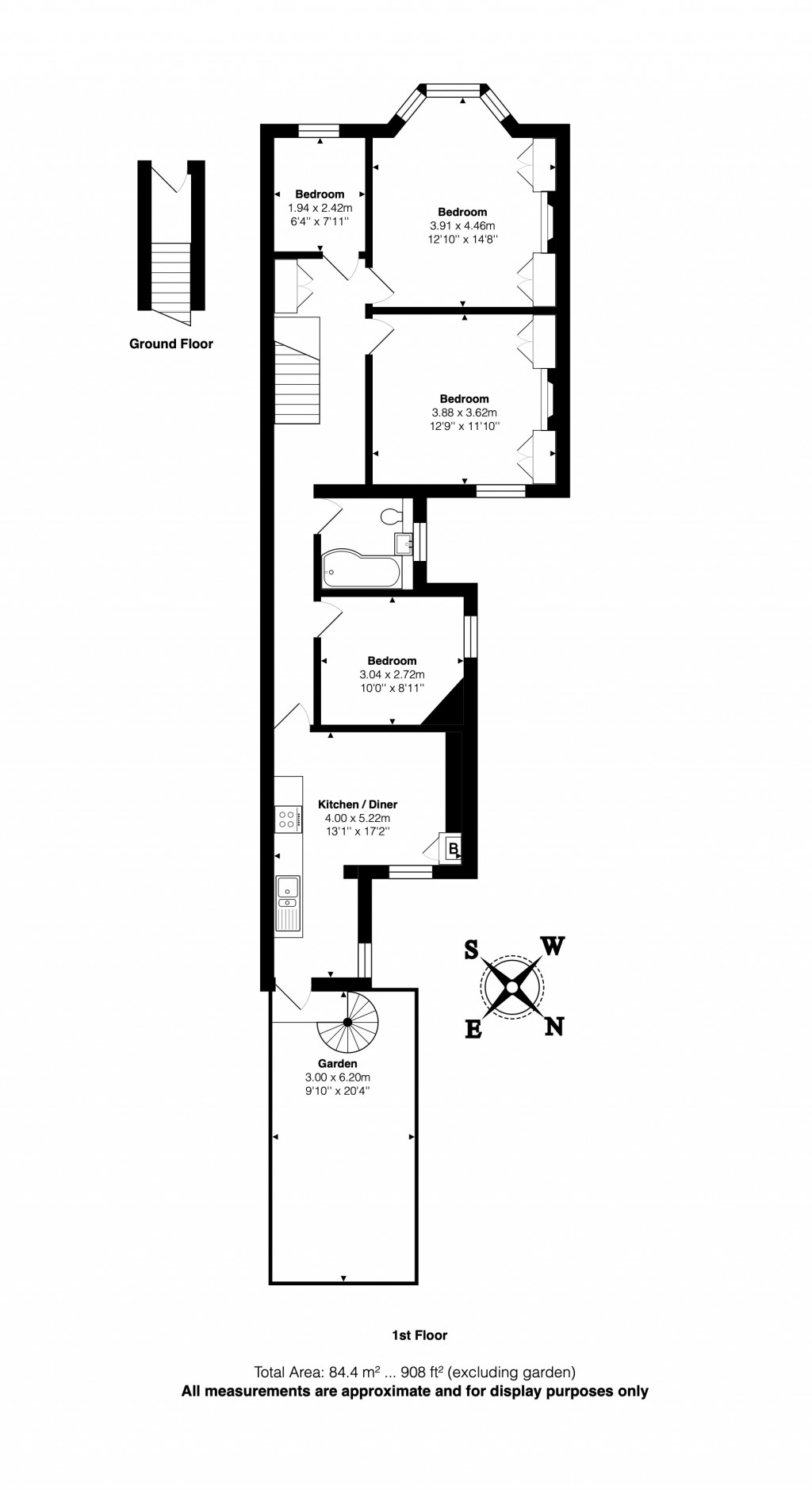
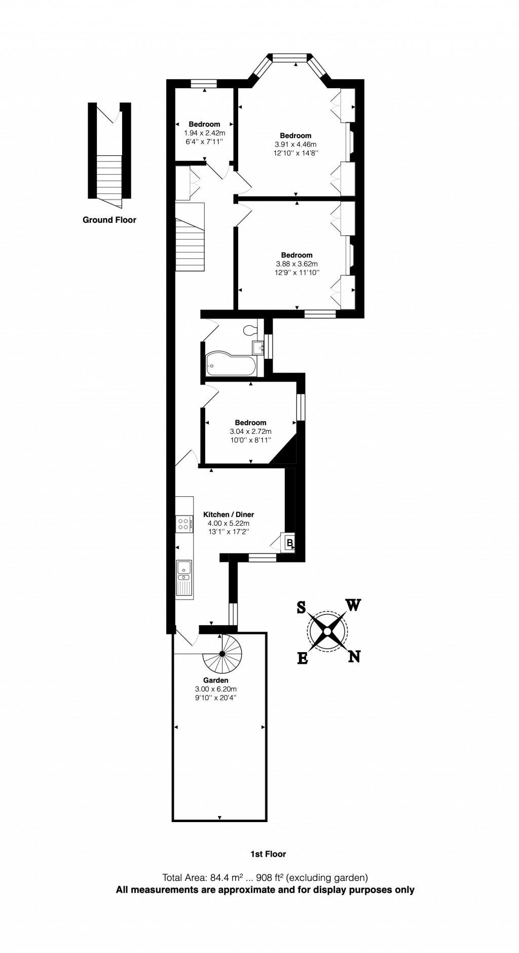
  • arrow icon Approximately 908 sq.ft
  • arrow icon Bespoke Fitted Kitchen
  • arrow icon Wood Flooring
  • arrow icon High Ceilings
  • arrow icon Private Garden
  • arrow icon Modern Bathroom Suite
  • arrow icon Original Fireplaces
  • arrow icon Underground Station 0.3m
  • arrow icon Loft Space

Originally built around 1900, this beautiful three-bedroom Red Brick Edwardian property with private garden extends to approximately 908 sq.ft, combining high ceilings and an abundance of natural light. It is situated on a highly desirable tree-lined street, close to local shops and excellent transport links.

Accessed via your own private internal front door, a staircase leads up to a bright and airy landing, which opens into the reception room at the front of the property. This beautifully proportioned room features a bay sash window, original decorative fireplace and mouldings, blending classic period charm with a sense of contemporary style. To the left of the staircase is the third bedroom, which would make an ideal study or children’s room. The main and second bedrooms both overlook the garden and are filled with natural light. The main bedroom also benefits from a decorative fireplace and bespoke fitted wardrobes, enhancing both character and functionality. The bathroom has been finished with a mix of marble and brick tiles, and comprises an L-shaped bath with waterfall shower, a vanity unit with wash basin, and a low-level WC, creating a sleek and contemporary space. At the rear of the property is a stunning bespoke kitchen and dining room with dual-aspect windows. The kitchen is fitted with a selection of wall and base units, quartz work surfaces, and integrated appliances. A spiral staircase leads directly down from the kitchen to the private landscaped garden, which has been designed for low maintenance while still providing an excellent outdoor area for entertaining. Additional benefits include naturally stained wood flooring throughout, ceiling mouldings, zonal downlighting, an efficient gas central heating system, and a loft space accessed from the landing, offering potential for conversion (STPP) as others have done in the road. Widdenham Road is a quiet leafy avenue, ideally located close to a range of local shops, cafés and restaurants, with the amenities of Upper Street and Angel also within easy reach. Holloway Road Tube station (Piccadilly line) is the closest at approximately 0.4 miles, while Highbury & Islington station (Victoria line & Overground) is around 0.6 miles. For green space, Highbury Fields is just 0.5 miles away, offering a large open area for recreation and leisure.

office

For further details on this property please call us on:
020 7607 5001

Download PDF
Arrange Viewing
Schools
Healthcare
Railways
Council Tax
Floorplans For Islington, London
EPC For Islington, London
X

X

Viewing Request