Bed icon  4   Bath icon  1

4 bed House To Let
Corporation Street, Stratford
£2,750 PCM Fees Apply


  • arrow icon Council Tax Band: C
  • arrow icon House
  • arrow icon Three / Four Bedrooms
  • arrow icon Garden
  • arrow icon Furnished

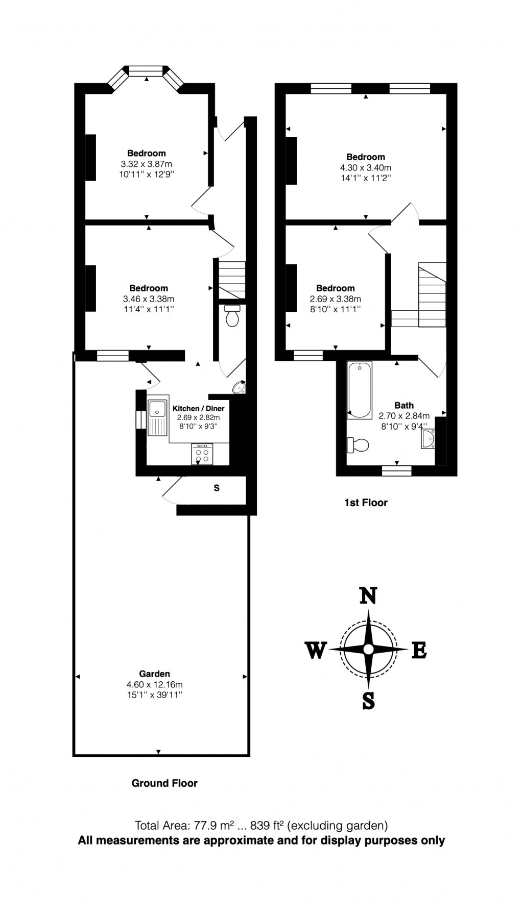
A versatile three/four-bedroom house set on a quiet residential street, just a short walk from Stratford Westfield Shopping Centre and Station. The property features a fitted kitchen/diner, a separate lounge currently used as a fourth bedroom, three double bedrooms, a family bathroom, a separate WC, and a private garden. Offered furnished.

office

For further details on this property please call us on:
020 7607 5001

Arrange Viewing
Schools
Healthcare
Railways
Council Tax
Floorplans For Stratford, London
EPC For Stratford, London
X

X

Viewing Request