Bed icon  2   Bath icon  1

2 bed Flat For Sale
Eburne Road, Islington
Guide Price £615,000


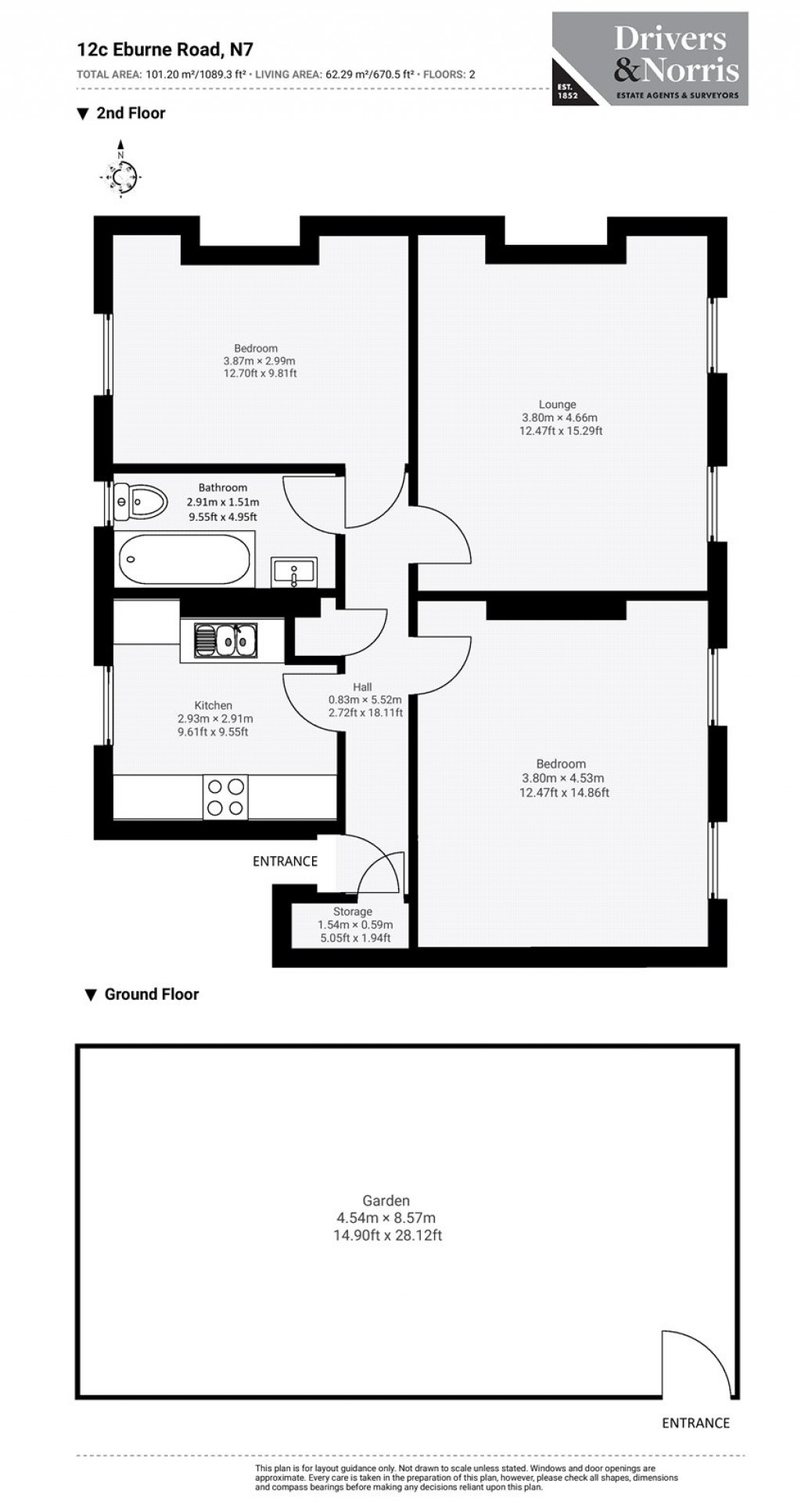
Set along a peaceful, tree-lined residential street, this attractive two double bedroom apartment occupies the top floor of an impressive period building and enjoys excellent natural light throughout, along with its own section of the rear garden. The property showcases a number of retained period details, including large sash windows and an original decorative fireplace, which provides a charming focal point within the reception room and enhances the home’s character.

The accommodation is well arranged and comprises a welcoming entrance hall, a bright and well-sized reception room, a separate kitchen offering generous preparation space and a range of fitted units for storage, two comfortable double bedrooms and a modern bathroom. The bathroom is fitted with a bath and overhead shower with separate hose and wall-mounted controls, a wash basin with mixer tap and a heated towel rail. Eburne Road is ideally positioned just off Holloway Road, placing a wide variety of shops, cafés, restaurants and local amenities within easy reach. Excellent transport connections are close by, with Finsbury Park station (Victoria, Piccadilly and Overground lines) approximately 0.7 miles away and Holloway Road Underground station (Piccadilly Line) around 0.6 miles, providing convenient access across London. EPC Rating = D Service Charge £1,105 Per Annum Ground Rent £10.00 Per Annum Council Tax Band - D Islington Borough Council Leasehold 98 Years Remining (Expires 25/12/2124)

office

For further details on this property please call us on:
020 7607 5001

Arrange Viewing
Schools
Healthcare
Railways
Council Tax
EPC For Islington, London
X

X

Viewing Request