Bed icon  2  

2 bed Ground Floor To Let
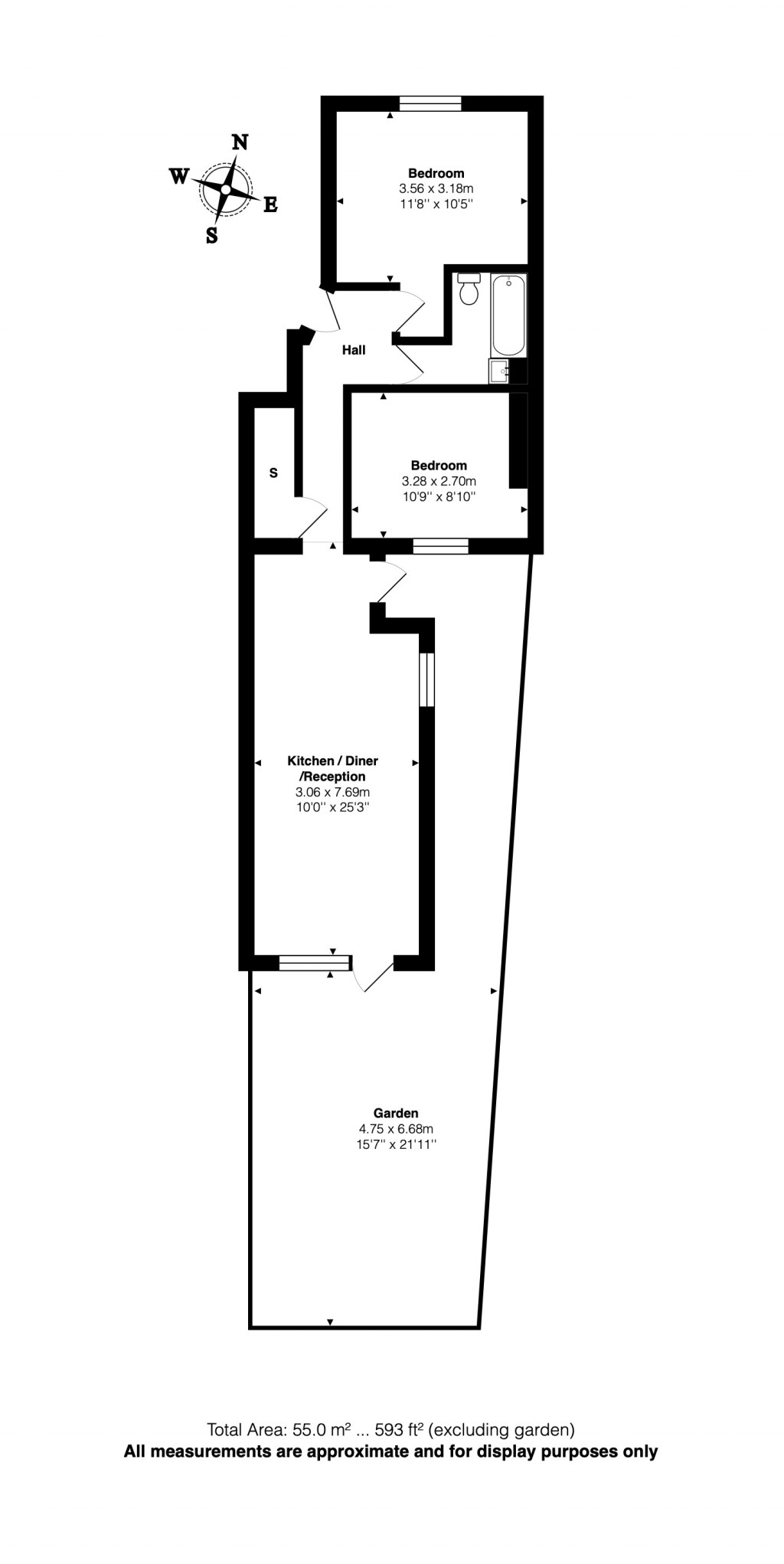
Tollington Way, Holloway
£2,200 PCM Fees Apply


  • arrow icon Council Tax Band: C
  • arrow icon Two Double Bedrooms
  • arrow icon Period Conversion
  • arrow icon Newly Refurbished
  • arrow icon Private Garden

Newly Renovated Two-Bedroom Garden Flat on a Highly Sought-After Street This beautifully renovated two-bedroom garden flat is situated on a very popular residential street, offering modern living in a desirable location. The property features a bright and spacious open-plan kitchen and lounge area, perfect for both relaxing and entertaining. The fitted kitchen is finished to a high standard, complemented by a contemporary bathroom suite. Both bedrooms provide generous living and sleeping space, creating a comfortable and versatile home environment.

office

For further details on this property please call us on:
020 7607 5001

Arrange Viewing
Schools
Healthcare
Railways
Council Tax
Floorplans For Holloway, London
EPC For Holloway, London
X

X

Viewing Request