Bed icon  3   Bath icon  2

3 bed Duplex Flat To Let
Hannah Court, Holbrook Road, Stratford
£2,250 PCM Fees Apply


  • arrow icon Council Tax Band: B
  • arrow icon Three Double Bedrooms
  • arrow icon Former School Conversion
  • arrow icon Recently Refurbished
  • arrow icon Furnished

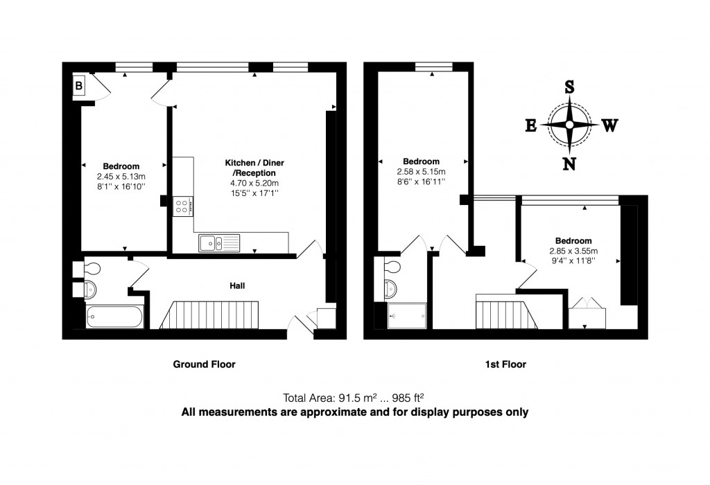
A stunning three bedroom split-level flat set within a beautifully converted school building, ideally located just a short walk from Plaistow and Stratford stations. The property offers spacious open-plan living accommodation, with a fully fitted kitchen opening onto a generous lounge, three well-proportioned double bedrooms, including a principal bedroom with en-suite, and a separate family bathroom. Offered fully furnished, this unique home combines character features with contemporary living, making it ideal for professional sharers or a family seeking space, style, and excellent transport connections.

office

For further details on this property please call us on:
020 7607 5001

Arrange Viewing
Schools
Healthcare
Railways
Council Tax
Floorplans For Holbrook Road, Stratford, London Floorplans For Holbrook Road, Stratford, London
EPC For Holbrook Road, Stratford, London
X

X

Viewing Request