Bed icon  5   Bath icon  2

5 bed Semi Detached House To Let
Milton Avenue, High Barnet
£3,300 PCM Fees Apply


  • arrow icon Council Tax Band: F
  • arrow icon - Council Tax Included
  • arrow icon - Private Rare Garden
  • arrow icon - Open Plan Kitchen
  • arrow icon - Five Double Bedrooms
  • arrow icon - Landlord Flexible on Furnishing

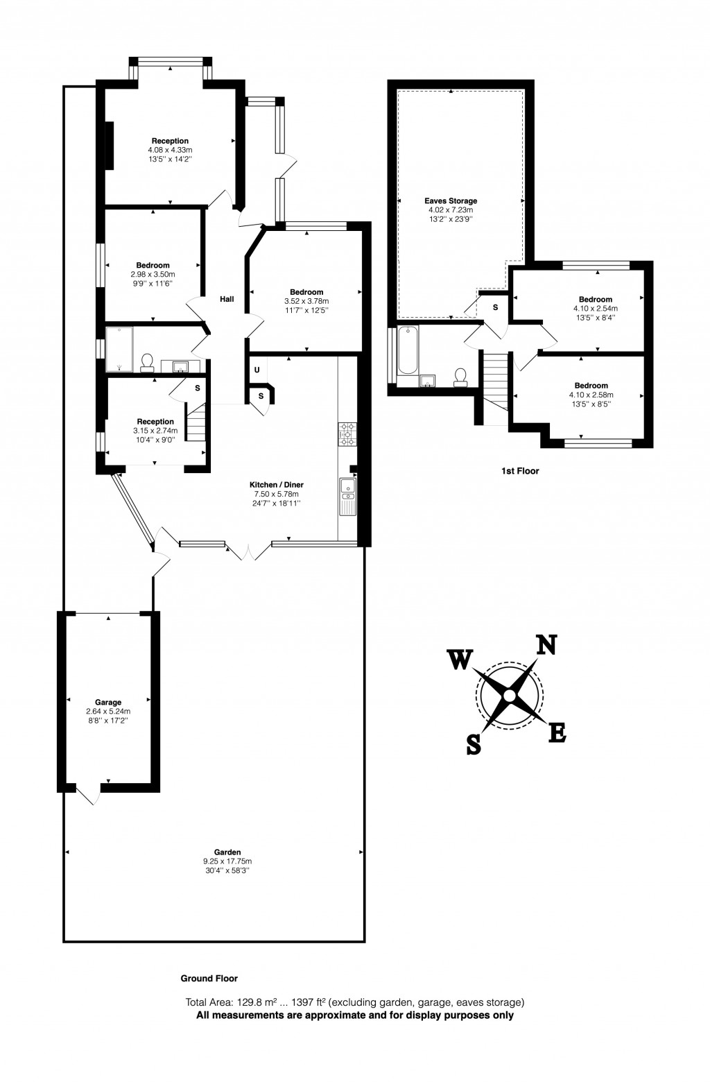
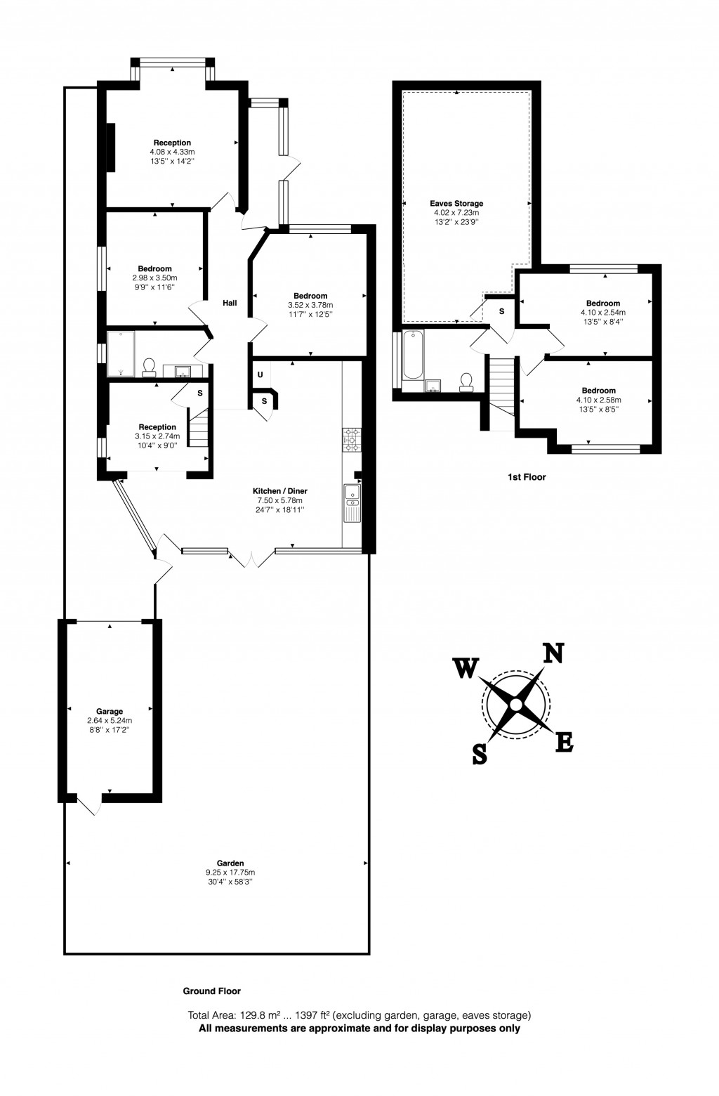
A spacious five bedroom bungalow, set over two floors, available to family tenants only, with council tax included. Located under 5 minutes’ walk from High Barnet Underground Station, and close to the shops and amenities on High Road and Barnet Hill. The property features off-street parking for two cars, a private rear garden with a decked terrace, and a fully fitted kitchen/diner complete with range cooker, large fridge-freezer, and utility cupboard with washer and separate dryer. Accommodation also includes semi-open plan living, two bathrooms, and tiled and wooden floors throughout. The landlord is flexible on furnishing, and the property is available from early December, offering a perfect family home in a convenient North London location.

office

For further details on this property please call us on:
020 7607 5001

Arrange Viewing
Schools
Healthcare
Railways
Council Tax
Floorplans For High Barnet, London
EPC For High Barnet, London
X

X

Viewing Request