Bath icon  1

Ground Floor Flat To Let
North Hill Court, Highgate
£1,400 PCM Fees Apply


  • arrow icon Council Tax Band: C
  • arrow icon - Fitted Kitchen
  • arrow icon - Parquet Flooring
  • arrow icon - Lots of natural Light
  • arrow icon - Unfurnished

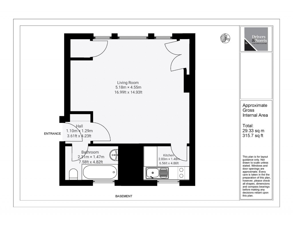
This fantastic REDECORATED SELF CONTAINED STUDIO APARTMENT located on the ground floor of this popular MANSION BLOCK. SET WITHIN 7 MINUTES WALK OF HIGHGATE TUBE station (zone 3 Northern line) this flat has a bright and spacious features with PARQUET FLOORING, A MODERN SEPARATE FITTED KITCHEN, three piece bathroom suite and ample storage throughout. Further benefits include gas centrally heating and a great location just moments from Highgate Village and Hampstead Heath also within close proximity. The Property is offered FURNISHED or UNFURNISHED.

office

For further details on this property please call us on:
020 7607 5001

Arrange Viewing
Schools
Healthcare
Railways
Council Tax
Floorplans For Highgate, London
EPC For Highgate, London
X

X

Viewing Request