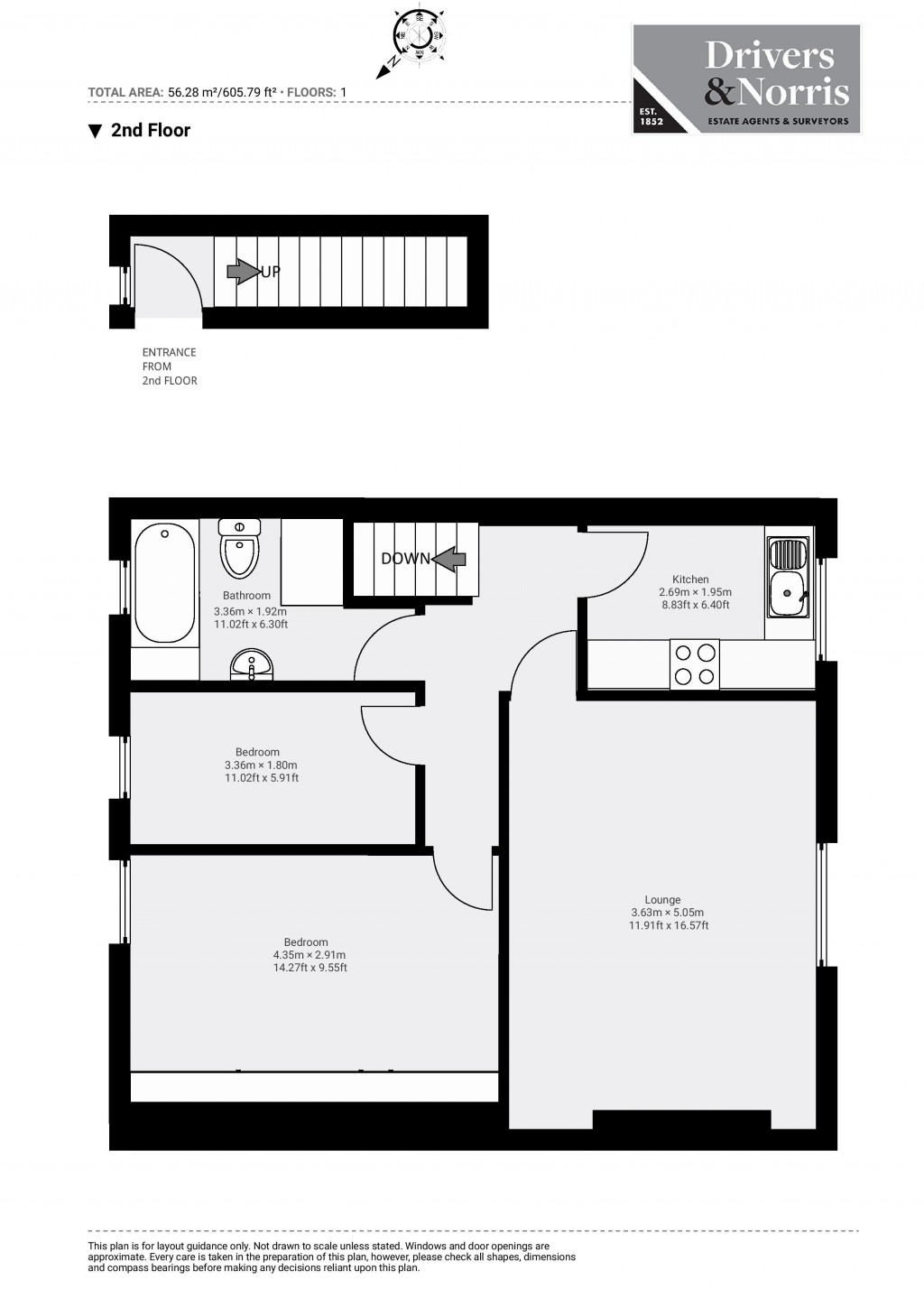
Bed icon  2   Bath icon  1

2 bed Upper Floor Flat To Let
Colney Hatch Lane, Muswell Hill
£1,750 PCM Fees Apply


  • arrow icon Council Tax Band: C
  • arrow icon - Third Floor
  • arrow icon - Wooden Floor
  • arrow icon - Communal Garden
  • arrow icon - Close to Muswell Hill and Finchley
  • arrow icon - Close to Large Tesco
  • arrow icon - Ample on street Parking

A Bright Two Bedroom TOP FLOOR Flat close to Muswell Hill Park. The property benefits DOUBLE GLAZING CENTRAL HEATING WOOD FLOORS and comprises A LARGE LIVING ROOM , A SEPARATE FITTED KITCHEN, two Bedrooms, TILE BATHROOM WC, Bathroom and COMMUNAL GARDEN. Furnished

office

For further details on this property please call us on:
020 7607 5001

Arrange Viewing
Schools
Healthcare
Railways
Council Tax
Floorplans For Muswell Hill, London
EPC For Muswell Hill, London
X

X

Viewing Request